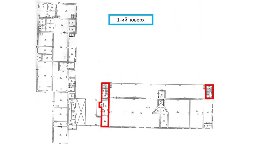
Івано-Франківська обл., м.Івано-Франківськ, вул.Ребета, 2. Оренда – Приміщення 2-го та 3-го поверху адміністративно-складської будівлі, площею 1518,3 м.кв. (В)

71 056.44 грн
46.80 грн / м2
Україна, Івано-Франківська обл., м.Івано-Франківськ, вул.Ребета, 2
Перейти до аукціону на сайті
  • Інформація
  • Опис
  • Документи
Дата оголошення пропозиції:
21 лютого 2022
Площа:
1518.30 м2
Тип об’єкта:
Приміщення
Тип аукціону:
Англійський аукціон
Статус аукціону:
Аукціон не відбувся
Тип угоди:
Оренда
Розмір мінімального кроку:
1 000.00 ₴
Розмір гарантійного внеску:
42 633.86 ₴
Початок прийому пропозицій:
21.02.2022 15:27:26
Завершення прийому пропозицій:
23.03.2022 20:00:00
Лот:
UA-PS-2022-02-21-000044-1
№ лоту (УТК):
UTK060721_12С
Лот виставляється на торги (раз):
8
Стислий опис майна:
Пропонуються до оренди приміщення 2-го та 3-го поверху адміністративно-складської будівлі, площею 1518,3 м.кв.. Будівля знаходиться на околиці міста в промисловій зоні, розвинена інфраструктура, поруч склади, товарні бази, виробничі цехи. Приміщення можуть використовуватись під склад, виробництво, тощо. кількість поверхів – 3 опалення газове; земельна ділянка – 0,6744 га (договір оренди)
Адреса місцезнаходження майна:
Україна, Івано-Франківська обл., м.Івано-Франківськ, вул.Ребета, 2
Схожі пропозиції
19.10.2022
Івано-Франківська обл., Івано-Франківський р-н, с.Росільна, вул. Шевченка, 145а. Оренда – Нежитлове приміщення І-го поверху, площею 33,4 м.кв. (В)
500.33 грн
14.98 грн / м2
Приміщення
Івано-Франківська обл., Івано-Франківський р-н, с.Росільна, вул. Шевченка, 145а. Оренда – Нежитлове приміщення І-го поверху, площею 33,4 м.кв. (В)
Україна, Івано-Франківська обл., Івано-Франківський р-н, с.Росільна, вул. Шевченка, 145а
Івано-Франківська обл., смт. Рожнятів, площа Єдності, 9. Оренда – Приміщення 3-го поверху 100,8 кв.м.
1 572.48 грн
15.60 грн / м2
Приміщення
Івано-Франківська обл., смт. Рожнятів, площа Єдності, 9. Оренда – Приміщення 3-го поверху 100,8 кв.м.
Україна, Івано-Франківська обл., смт. Рожнятів, площа Єдності, 9
21.02.2023
Івано-Франківська обл., м. Івано-Франківськ, вул. Ребета, 2. Оренда – приміщення складу площею 36,5 кв.м. (В)
1 691.05 грн
46.33 грн / м2
Приміщення
Івано-Франківська обл., м. Івано-Франківськ, вул. Ребета, 2. Оренда – приміщення складу площею 36,5 кв.м. (В)
Україна, Івано-Франківська обл., Івано-Франківськ, вулиця Ребета, 2
м. Івано-Франківськ, вул. В.Симоненка, 1. Оренда – приміщення 1-го поверху площею 54,0 кв.м.
2 527.20 грн
46.80 грн / м2
Приміщення
м. Івано-Франківськ, вул. В.Симоненка, 1. Оренда – приміщення 1-го поверху площею 54,0 кв.м.
Україна, Івано-Франківська обл., м. Івано-Франківськ, вул. В.Симоненка, 1
Переглянуті пропозиції
23.07.2024
Вінницька обл., Гайсинський р-н., м. Тростянець, вул. Соборна, 47. Оренда – приміщення 3 поверху площею 66,20 кв.м. (В)
331.00 грн
5.00 грн / м2
Приміщення
Вінницька обл., Гайсинський р-н., м. Тростянець, вул. Соборна, 47. Оренда – приміщення 3 поверху площею 66,20 кв.м. (В)
Україна, Вінницька обл., Гайсинський р-н., м. Тростянець, вул. Соборна, 47
Вінницька обл., Вінницький р-н., м. Іллінці, вул. Соборна, 29. Оренда – Приміщення 1-го поверху площею 39,4 кв.м. (В)
780.12 грн
19.80 грн / м2
Приміщення
Вінницька обл., Вінницький р-н., м. Іллінці, вул. Соборна, 29. Оренда – Приміщення 1-го поверху площею 39,4 кв.м. (В)
Україна, Вінницька обл., Вінницький р-н., м. Іллінці, вул. Соборна, 29
Харківська обл., м. Харків, вул. Академіка Вальтера, 3. Оренда – приміщення цокольного поверху, площею 47,9 кв.м. (В)
942.67 грн
19.68 грн / м2
Приміщення
Харківська обл., м. Харків, вул. Академіка Вальтера, 3. Оренда – приміщення цокольного поверху, площею 47,9 кв.м. (В)
Україна, Харківська обл., м. Харків, вул. Ак. Вальтера,3
12.01.2024
Вінницька обл., Гайсинський р-н., м. Тростянець, вул. Соборна, 47. Оренда – приміщення 3 поверху площею 66,20 кв.м. (В)
331.00 грн
5.00 грн / м2
Приміщення
Вінницька обл., Гайсинський р-н., м. Тростянець, вул. Соборна, 47. Оренда – приміщення 3 поверху площею 66,20 кв.м. (В)
Україна, Вінницька обл., Гайсинський р-н., м. Тростянець, вул. Соборна, 47