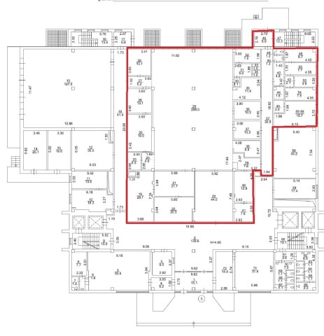
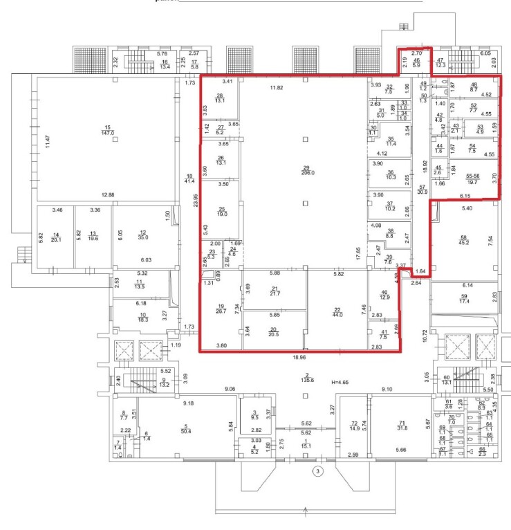
Довгострокова оренда! Вінницька обл., м. Вінниця, вул. Соборна, 10. Оренда – Приміщення 1-го поверху площею 562,40 кв.м (В)

62 426.40 грн
111.00 грн / м2
Україна, Вінницька обл., Вінниця, вулиця Соборна, 10
Перейти до аукціону на сайті
  • Інформація
  • Опис
  • Документи
Дата оголошення пропозиції:
07 червня 2025
Площа:
562.40 м2
Тип об’єкта:
Приміщення
Тип аукціону:
Англійський аукціон
Статус аукціону:
Аукціон не відбувся
Тип угоди:
Оренда
Розмір мінімального кроку:
1 300.00 ₴
Розмір гарантійного внеску:
37 455.84 ₴
Початок прийому пропозицій:
07.06.2025 17:15:59
Завершення прийому пропозицій:
07.07.2025 20:00:00
Проведення аукціону:
08.07.2025 11:05:00
Лот:
CLE001-UA-20250607-10380
№ лоту (УТК):
UTK050424_01U
Лот виставляється на торги (раз):
2
Стислий опис майна:
Приміщення 1-го поверху площею 562,40 кв.м. Знаходиться в будівлі в центральній частині м. Вінниця, поруч торговельні заклади, готель, супермаркети, сквер, релігійні споруди (Собор, Костел), музеї. Віддаленість від зупинки громадського транспорту орієнтовно 50 м. Характеристики - Кількість поверхів – 9; - Загальна площа 12088,40 кв.м. - Площа до оренди 562,40кв.м. Дозволена потужність – 10,0 кВт Електропостачання, водопостачання,водовідведення. Теплопостачання, - відсутнє Земельна ділянка – 0,5778га (державний акт)
Адреса місцезнаходження майна:
Україна, Вінницька обл., Вінниця, вулиця Соборна, 10
Схожі пропозиції
Вінницька обл., м. Вінниця, вул. М. Оводова, 22. Оренда – частина приміщень 1-го поверху площею 23,20 кв.м. (В)
12 992.00 грн
560.00 грн / м2
Приміщення
Вінницька обл., м. Вінниця, вул. М. Оводова, 22. Оренда – частина приміщень 1-го поверху площею 23,20 кв.м. (В)
Україна, Вінницька обл., Вінниця, вул. М. Оводова, 22
29.03.2024
Вінницька обл. м. Могилів-Подільський, вул. Київська, 41;  Оренда – приміщення 1-го поверху, площею 48,2 кв.м. (В)
706.61 грн
14.66 грн / м2
Приміщення
Вінницька обл. м. Могилів-Подільський, вул. Київська, 41; Оренда – приміщення 1-го поверху, площею 48,2 кв.м. (В)
Україна, Вінницька обл., Могилів-Подільський, вулиця Київська, 41
24.02.2023
Вінницька обл., Вінницький р-н, м. Немирів, вул. Шевченка, 25, оренда – приміщення 1 поверху площею 21,2 кв. м (В)
508.80 грн
24.00 грн / м2
Приміщення
Вінницька обл., Вінницький р-н, м. Немирів, вул. Шевченка, 25, оренда – приміщення 1 поверху площею 21,2 кв. м (В)
Україна, Вінницька обл., Немирів, вул. Шевченка, 25
Переглянуті пропозиції
Дніпропетровська обл., м. Кривий Ріг, вул. Головка Адмірала, 71. Оренда – приміщення 4-го поверху, площею 580,5 кв.м. (В)
29 744.82 грн
51.24 грн / м2
Приміщення
Дніпропетровська обл., м. Кривий Ріг, вул. Головка Адмірала, 71. Оренда – приміщення 4-го поверху, площею 580,5 кв.м. (В)
Україна, Дніпропетровська обл., Кривий Ріг, вул. Головка Адмірала, 71
Полтавська обл., м. Миргород, вул. Гоголя, 96/9. Оренда – складське приміщення площею 14,20 кв.м. (В)
224.79 грн
15.83 грн / м2
Приміщення
Полтавська обл., м. Миргород, вул. Гоголя, 96/9. Оренда – складське приміщення площею 14,20 кв.м. (В)
Україна, Полтавська обл., м. Миргород, вул. Гоголя,96/9
14.10.2025
Полтавська обл., смт. Опішня, вулиця Незалежності, 7. Оренда – приміщення 1-го поверху площею 20,60 кв.м. (В)
591.01 грн
28.69 грн / м2
Приміщення
Полтавська обл., смт. Опішня, вулиця Незалежності, 7. Оренда – приміщення 1-го поверху площею 20,60 кв.м. (В)
Україна, Полтавська обл., Опішня, вул. Незалежності, 7
27.11.2024
м. Чернігів, вул. Ринкова, 20;  Оренда – приміщення 6-го поверху площею 25,10 кв.м. (В)
2 145.30 грн
85.47 грн / м2
Приміщення
м. Чернігів, вул. Ринкова, 20; Оренда – приміщення 6-го поверху площею 25,10 кв.м. (В)
Україна, Чернігівська обл., Чернігів, вулиця Ринкова, 20