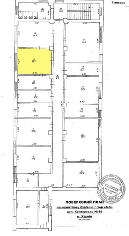
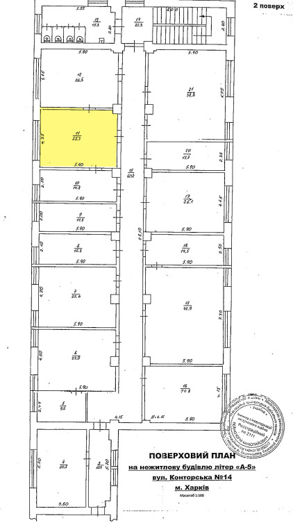
м.Харків, вул. Конторська,14 в. Оренда – приміщення 2-го поверху площею 25,7 кв.м (В)

1 438.14 грн
55.96 грн / м2
Україна, Харківська обл., м. Харків, вул. Конторська,14
Перейти до аукціону на сайті
  • Інформація
  • Опис
  • Документи
Дата оголошення пропозиції:
13 червня 2025
Площа:
25.70 м2
Тип об’єкта:
Приміщення
Тип аукціону:
Англійський аукціон
Статус аукціону:
Аукціон не відбувся
Тип угоди:
Оренда
Розмір мінімального кроку:
50.00 ₴
Розмір гарантійного внеску:
860.90 ₴
Початок прийому пропозицій:
13.06.2025 14:05:45
Завершення прийому пропозицій:
15.07.2025 20:00:00
Проведення аукціону:
16.07.2025 11:20:00
Лот:
CLE001-UA-20250613-88486
№ лоту (УТК):
UTK210225_10P
Лот виставляється на торги (раз):
4
Стислий опис майна:
Пропонується до оренди приміщення 2-го поверху площею 25,7 кв.м. Будівля в центрі міста Харкова. 15 хв до метро Центральний ринок. Характеристики: Кількість поверхів – 4; Загальна площа – 5611,00 кв.м_ Площа запропонована до оренди – 25,7 кв.м Дозволена потужність –2,0 кВт Теплопостачання - відсутнє Земельна ділянка – 0,5169 га
Адреса місцезнаходження майна:
Україна, Харківська обл., м. Харків, вул. Конторська,14
Схожі пропозиції
24.01.2024
Харківська обл., м. Лозова, вул. Михайла Грушевського, 7. Оренда – приміщення 3-го поверху, площею 1243,7 кв.м. (В)
34 027.63 грн
27.36 грн / м2
Приміщення
Харківська обл., м. Лозова, вул. Михайла Грушевського, 7. Оренда – приміщення 3-го поверху, площею 1243,7 кв.м. (В)
Україна, Харківська обл., м. Лозова, вул. Михайла Грушевського, 7
27.09.2024
Харківська обл., м. Харків, вул. Коцарська, 45, літер «А-4»;  Оренда – приміщення на 2-му поверсі загальною площею 27,60 кв.м. (В)
1 483.78 грн
53.76 грн / м2
Приміщення
Харківська обл., м. Харків, вул. Коцарська, 45, літер «А-4»; Оренда – приміщення на 2-му поверсі загальною площею 27,60 кв.м. (В)
Україна, Харківська обл., Харків, вулиця Коцарська, 45
21.08.2024
м.Харків, Салтівське шосе, 2. Оренда – приміщення 1-го поверху, площею 35,9 кв.м (В)
1 930.70 грн
53.78 грн / м2
Приміщення
м.Харків, Салтівське шосе, 2. Оренда – приміщення 1-го поверху, площею 35,9 кв.м (В)
Україна, Харківська обл., м. Харків, Салтівське шосе,2
20.05.2025
м. Харків, пр-т Ювілейний,66. Оренда – приміщення 2-го поверху площею 36,5 кв.м (В)
2 765.61 грн
75.77 грн / м2
Приміщення
м. Харків, пр-т Ювілейний,66. Оренда – приміщення 2-го поверху площею 36,5 кв.м (В)
Україна, Харківська обл., м. Харків, пр-т Ювілейний,66
Переглянуті пропозиції
03.06.2025
Харківська обл., м. Харків, вул. Рибалка, 3-А. Оренда – приміщення одноповерхової будівлі площею 10,00 кв.м. (В)
502.60 грн
50.26 грн / м2
Приміщення
Харківська обл., м. Харків, вул. Рибалка, 3-А. Оренда – приміщення одноповерхової будівлі площею 10,00 кв.м. (В)
Україна, Харківська обл., м. Харків, вул. Рибалка, 3-А
25.06.2024
Дніпропетровська обл, смт. Петриківка, пр. Петра Калнишевського, 52. Оренда – приміщення 2-го поверху загальною площею 158,80 кв.м (В)
2 080.28 грн
13.10 грн / м2
Приміщення
Дніпропетровська обл, смт. Петриківка, пр. Петра Калнишевського, 52. Оренда – приміщення 2-го поверху загальною площею 158,80 кв.м (В)
Україна, Дніпропетровська обл., смт. Петриківка, пр. Петра Калнишевського, 52
20.08.2024
Дніпропетровська обл., м. Кам’янське, просп. Свободи, 44. Оренда – приміщення 5-го поверху загальною площею 237,20 кв.м (В)
6 034.37 грн
25.44 грн / м2
Приміщення
Дніпропетровська обл., м. Кам’янське, просп. Свободи, 44. Оренда – приміщення 5-го поверху загальною площею 237,20 кв.м (В)
Україна, Дніпропетровська обл., м. Кам’янське, просп. Свободи, 44
03.09.2025
Дніпропетровська обл., м. Кам’янське, просп. Свободи, 44. Оренда – приміщення 5-го поверху загальною площею 26,10 кв.м (В)
522.00 грн
20.00 грн / м2
Приміщення
Дніпропетровська обл., м. Кам’янське, просп. Свободи, 44. Оренда – приміщення 5-го поверху загальною площею 26,10 кв.м (В)
Україна, Дніпропетровська обл., м. Кам’янське, просп. Свободи, 44