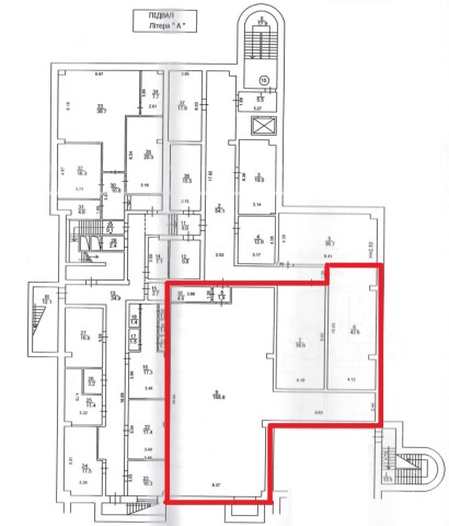
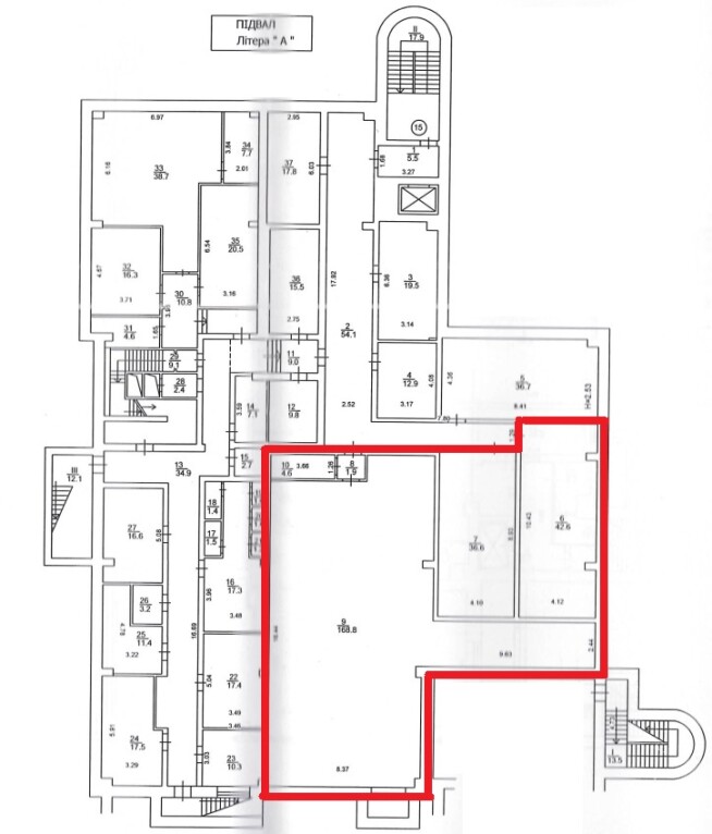
м. Київ, вул. Князів Острозьких (Московська), 23 (В). Оренда – приміщення підвалу будівлі, площею 254,50 м2

41 987.41 грн
164.98 грн / м2
Україна, м.Київ, Київ, вулиця Князів Острозьких, 23
Перейти до аукціону на сайті
  • Інформація
  • Опис
  • Документи
Дата оголошення пропозиції:
01 липня 2025
Площа:
254.50 м2
Тип об’єкта:
Приміщення
Тип аукціону:
Англійський аукціон
Статус аукціону:
Аукціон не відбувся
Тип угоди:
Оренда
Розмір мінімального кроку:
1 000.00 ₴
Розмір гарантійного внеску:
25 192.45 ₴
Початок прийому пропозицій:
01.07.2025 00:46:57
Завершення прийому пропозицій:
30.07.2025 20:00:00
Проведення аукціону:
31.07.2025 11:45:00
Лот:
CLE001-UA-20250630-37800
№ лоту (УТК):
UTK050325_78U
Лот виставляється на торги (раз):
4
Стислий опис майна:
Пропонуються до оренди приміщення підвалу будівлі, літ. «А», площею 254,50 м2. Розташування будівлі у Печерському районі міста Києва, місцевість Печерськ. Поруч розвинена інфраструктура, зупинки громадського транспорту, супермаркети, центральна вулиця міста, у пішому доступі 5 хв до ст. м. «Арсенальна». Характеристики • кількість поверхів – 5; • сан. вузол, каналізація, теплозабезпечення – присутнє; • площа будівлі – літ. «А» - 6172,50 м2; • опалення централізоване (міське); • земельна ділянка – 0,26 га; • енерго потужність – 10 кВт.
Адреса місцезнаходження майна:
Україна, м.Київ, Київ, вулиця Князів Острозьких, 23
Схожі пропозиції
23.04.2025
ДОВГОСТРОКОВА ОРЕНДА!  м. Київ, пр-т Оболонський, 32-Б ;  Оренда – приміщення 4-го поверху, площею 772,40 м2 (В)
93 461.94 грн
121.00 грн / м2
Приміщення
ДОВГОСТРОКОВА ОРЕНДА! м. Київ, пр-т Оболонський, 32-Б ; Оренда – приміщення 4-го поверху, площею 772,40 м2 (В)
Україна, м.Київ, Київ, Оболонський проспект, 32-Б
04.06.2025
м. Київ, вул. Джона Маккейна, 40, літ. «А» (Печерський р-н). Оренда – група приміщень у підвалі, площею 49,40 кв.м (В)
10 021.78 грн
202.87 грн / м2
Приміщення
м. Київ, вул. Джона Маккейна, 40, літ. «А» (Печерський р-н). Оренда – група приміщень у підвалі, площею 49,40 кв.м (В)
Україна, м.Київ, Київ, 01042, м. Київ, вул. Джона Маккейна, 40, літ. «А» (Печерський р-н)
12.08.2022
м. Київ, вул. Ісаакяна, 3 Оренда – Приміщення 2-го поверху площею 149,81 кв.м. (В)
22 690.22 грн
151.46 грн / м2
Приміщення
м. Київ, вул. Ісаакяна, 3 Оренда – Приміщення 2-го поверху площею 149,81 кв.м. (В)
Україна, м.Київ, Київ, вул. Ісаакяна, 3
27.05.2025
м. Київ, вул. Салютна, 5-А, літ. «Б» (В). Оренда – приміщення 3-го та 4-го поверху, площею 992,80 м2
59 568.00 грн
60.00 грн / м2
Приміщення
м. Київ, вул. Салютна, 5-А, літ. «Б» (В). Оренда – приміщення 3-го та 4-го поверху, площею 992,80 м2
Україна, м.Київ, Київ, м. Київ, вул. Салютна, 5-А, літ. «Б» (В)
Переглянуті пропозиції
25.06.2024
Дніпропетровська обл., м. Кривий Ріг, вул. Водоп`янова, 1а;   Оренда – приміщення  1-го поверху, площею 282,5 кв.м. (В)
2 542.50 грн
9.00 грн / м2
Приміщення
Дніпропетровська обл., м. Кривий Ріг, вул. Водоп`янова, 1а; Оренда – приміщення 1-го поверху, площею 282,5 кв.м. (В)
Україна, Дніпропетровська обл., Кривий Ріг, вулиця Водоп'янова, 1а