ДОВГОСТРОКОВА ОРЕНДА! Івано-Франківська обл., Коломийський р-н, с-ще Заболотів, вул. Грушевського, 5. Оренда – група приміщень 2-го поверху, площею 304,1 кв.м. (В)

14 444.75 грн
47.50 грн / м2
Україна, Івано-Франківська обл., Коломийський р-н, с-ще Заболотів, вул. Грушевського, 5
Перейти до аукціону на сайті
  • Інформація
  • Опис
  • Документи
Дата оголошення пропозиції:
25 липня 2025
Площа:
304.10 м2
Тип об’єкта:
Приміщення
Тип аукціону:
Англійський аукціон
Статус аукціону:
Аукціон не відбувся
Тип угоди:
Оренда
Розмір мінімального кроку:
200.00 ₴
Розмір гарантійного внеску:
8 666.85 ₴
Початок прийому пропозицій:
25.07.2025 10:49:00
Завершення прийому пропозицій:
25.08.2025 20:00:00
Проведення аукціону:
26.08.2025 11:45:00
Лот:
CLE001-UA-20250725-43905
№ лоту (УТК):
UTK250725_03P
Лот виставляється на торги (раз):
1
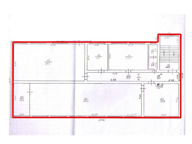
Стислий опис майна:
Пропонуються до оренди група приміщень 2-го поверху, площею 304,1 кв.м. в с-щі Заболотів, по вул.Грушевського, 5. Приміщення знаходиться в центральній частині населеного пункту, розвинена інфраструктура, високий пішохідний та транспортний потік. Характеристики Кількість поверхів – 2 Загальна площа – 587,80 кв.м. Площа запропонована до оренди –304,10 кв.м. Дозволена потужність – 5,0 кВт Опалення – відсутнє; Земельна ділянка – 0,1477 га
Адреса місцезнаходження майна:
Україна, Івано-Франківська обл., Коломийський р-н, с-ще Заболотів, вул. Грушевського, 5
Схожі пропозиції
15.09.2023
Івано-Франківська обл., м. Івано-Франківськ, вул. Ребета, 2. Оренда – Приміщення 2-го та 3-го поверху адміністративно-складської будівлі, площею 1518,3 кв.м. (В)
Івано-Франківська обл., Калуський район, смт.Рожнятів, площа Єдності, 9, оренда – Приміщення 3-го поверху площею 100,8 м.кв. (В)
1 257.98 грн
12.48 грн / м2
Приміщення
Івано-Франківська обл., Калуський район, смт.Рожнятів, площа Єдності, 9, оренда – Приміщення 3-го поверху площею 100,8 м.кв. (В)
Україна, Івано-Франківська обл., Рожнятів, площа Єдності, 9
Івано-Франківська обл., м. Коломия, вул. Чорновола, 45. Оренда приміщень 5-го поверху
7 560.53 грн
14.88 грн / м2
Приміщення
Івано-Франківська обл., м. Коломия, вул. Чорновола, 45. Оренда приміщень 5-го поверху
Україна, Івано-Франківська обл., м. Коломия, вул. Чорновола, 45
Івано-Франківська обл., смт. Верховина, вул. Франка, 6. Оренда – Приміщення 2-го поверху 18,4 кв.м.
273.79 грн
14.88 грн / м2
Приміщення
Івано-Франківська обл., смт. Верховина, вул. Франка, 6. Оренда – Приміщення 2-го поверху 18,4 кв.м.
Україна, Івано-Франківська обл., смт. Верховина, вул. Франка, 6
Переглянуті пропозиції
02.09.2025
Сумська обл., Конотопський р-н., с. Пекарі, вул. Центральна, буд. 1. Оренда – нежитлова будівля площею 123,20 кв.м. (В)
1 478.40 грн
12.00 грн / м2
Будівля
Сумська обл., Конотопський р-н., с. Пекарі, вул. Центральна, буд. 1. Оренда – нежитлова будівля площею 123,20 кв.м. (В)
Україна, Сумська обл., Конотопський р-н., с. Пекарі, вул. Центральна, буд.1
22.04.2025
м. Харків, Салтівське шосе, 2. Оренда – приміщення 2-го поверху, площею 343,7 кв.м (В)
10 654.70 грн
31.00 грн / м2
Приміщення
м. Харків, Салтівське шосе, 2. Оренда – приміщення 2-го поверху, площею 343,7 кв.м (В)
Україна, Харківська обл., м. Харків, Салтівське шосе, 2
22.04.2025
м.Харків, вул. Конторська,14. Оренда – приміщення цокольного поверху, площею 82,7 кв.м  (В)
2 481.00 грн
30.00 грн / м2
Приміщення
м.Харків, вул. Конторська,14. Оренда – приміщення цокольного поверху, площею 82,7 кв.м (В)
Україна, Харківська обл., м. Харків, вул. Конторська,14
29.06.2023
Дніпропетровська обл., м. Жовті Води, вул. Свободи, 39. Оренда – приміщення 3-го поверху площею 34,1 кв.м. (В)
854.75 грн
25.07 грн / м2
Приміщення
Дніпропетровська обл., м. Жовті Води, вул. Свободи, 39. Оренда – приміщення 3-го поверху площею 34,1 кв.м. (В)
Україна, Дніпропетровська обл., Жовті Води, бульвар Свободи, 39