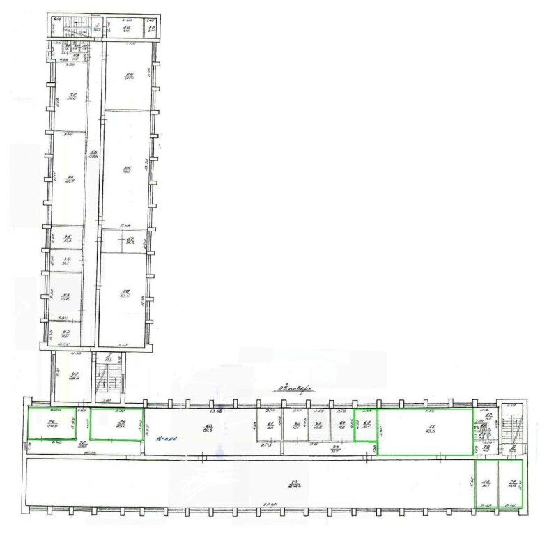
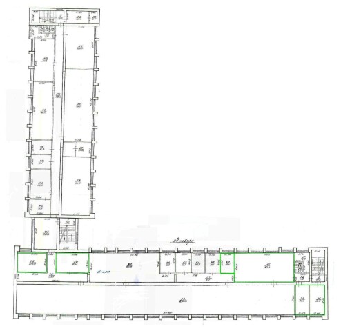
Львівська обл., м. Новояворівськ, вул. Шевченка,7. Оренда – приміщення 2-го поверху площею 148,2 кв.м. (В)

1 493.86 грн
10.08 грн / м2
Україна, Львівська обл., м. Новояворівськ, вул. Шевченка,7
Перейти до аукціону на сайті
  • Інформація
  • Опис
  • Документи
Дата оголошення пропозиції:
22 березня 2022
Площа:
148.20 м2
Тип об’єкта:
Приміщення
Тип аукціону:
Англійський аукціон
Статус аукціону:
Аукціон не відбувся
Тип угоди:
Оренда
Розмір мінімального кроку:
50.00 ₴
Розмір гарантійного внеску:
896.31 ₴
Початок прийому пропозицій:
22.03.2022 11:26:21
Завершення прийому пропозицій:
19.04.2022 20:00:00
Лот:
UA-PS-2022-03-22-000003-2
№ лоту (УТК):
UTK150721_03Р
Лот виставляється на торги (раз):
3
Стислий опис майна:
Пропонуються до оренди приміщення 2-го поверху площею 148,2 кв.м.. Будівля знаходиться у центральній частини міста, розвинена інфраструктура. Характеристики: кількість поверхів – 3 Опалення , електропостачання,водопостачання, водовідведення – централізоване, технічна охорона. потребує ремонту Вільна до використання потужність – 20кВт земельна ділянка – 0,52 га (податок);
Адреса місцезнаходження майна:
Україна, Львівська обл., м. Новояворівськ, вул. Шевченка,7
Схожі пропозиції
Львівська обл., м. Новояворівськ, вул. Шевченка,7. Оренда – приміщення 2-го поверху площею 148,2 кв.м. (В)
2 429.00 грн
16.39 грн / м2
Приміщення
Львівська обл., м. Новояворівськ, вул. Шевченка,7. Оренда – приміщення 2-го поверху площею 148,2 кв.м. (В)
Україна, Львівська обл., м. Новояворівськ, вул. Шевченка,7
25.08.2023
Львівська обл., с. Зубів Міст, вул. Широка, 23. Оренда – приміщення 2-го поверху площею 17,3 кв. м (В)
259.50 грн
15.00 грн / м2
Приміщення
Львівська обл., с. Зубів Міст, вул. Широка, 23. Оренда – приміщення 2-го поверху площею 17,3 кв. м (В)
Україна, Львівська обл., Зубів Міст, вул. Широка, 23
20.07.2023
Львівська обл., м. Стебник, майдан Шевченка, 1. Оренда – приміщення 1-го та 2-го поверху площею 361,60 кв.м. (В)
5 207.04 грн
14.40 грн / м2
Приміщення
Львівська обл., м. Стебник, майдан Шевченка, 1. Оренда – приміщення 1-го та 2-го поверху площею 361,60 кв.м. (В)
Україна, Львівська обл., м. Стебник, майдан Шевченка, 1
29.08.2025
ДОВГОСТРОКОВА ОРЕНДА! Львівська обл., м. Львів, вул. Княгині Ольги, 108. Оренда – приміщення 4-го поверху площею 641,30 кв.м. (В)
51 304.00 грн
80.00 грн / м2
Приміщення
ДОВГОСТРОКОВА ОРЕНДА! Львівська обл., м. Львів, вул. Княгині Ольги, 108. Оренда – приміщення 4-го поверху площею 641,30 кв.м. (В)
Україна, Львівська обл., м. Львів, вул. Княгині Ольги, 108
Переглянуті пропозиції
Рівненська обл., м. Вараш, м-н Незалежності, 4. Оренда – приміщення 2 поверху, площею 215,3 м.кв. (В)
4 960.51 грн
23.04 грн / м2
Приміщення
Рівненська обл., м. Вараш, м-н Незалежності, 4. Оренда – приміщення 2 поверху, площею 215,3 м.кв. (В)
Україна, Рівненська обл., м. Вараш, м-н Незалежності, 4
12.07.2024
Полтавська обл., м. Лубни, проспект Володимирський, 1/5. Оренда – приміщення 2-го поверху площею 295,50 кв.м. (В)
6 430.08 грн
21.76 грн / м2
Приміщення
Полтавська обл., м. Лубни, проспект Володимирський, 1/5. Оренда – приміщення 2-го поверху площею 295,50 кв.м. (В)
Україна, Полтавська обл., м. Лубни, проспект Володимирський, 1/5
м. Київ, вул. Феодори Пушиної, 27-А, оренда – приміщення 3-го поверху, площею 7,50 кв.м. (В)
1 630.65 грн
217.42 грн / м2
Приміщення
м. Київ, вул. Феодори Пушиної, 27-А, оренда – приміщення 3-го поверху, площею 7,50 кв.м. (В)
Україна, м.Київ, Київ, вул. Феодори Пушиної, 27
Рівненська обл., м. Рівне, вул. Міцкевича, 2. Оренда – приміщення 2-го поверху
2 468.88 грн
60.96 грн / м2
Приміщення
Рівненська обл., м. Рівне, вул. Міцкевича, 2. Оренда – приміщення 2-го поверху
Україна, Рівненська обл., м. Рівне, вул. Міцкевича, 2