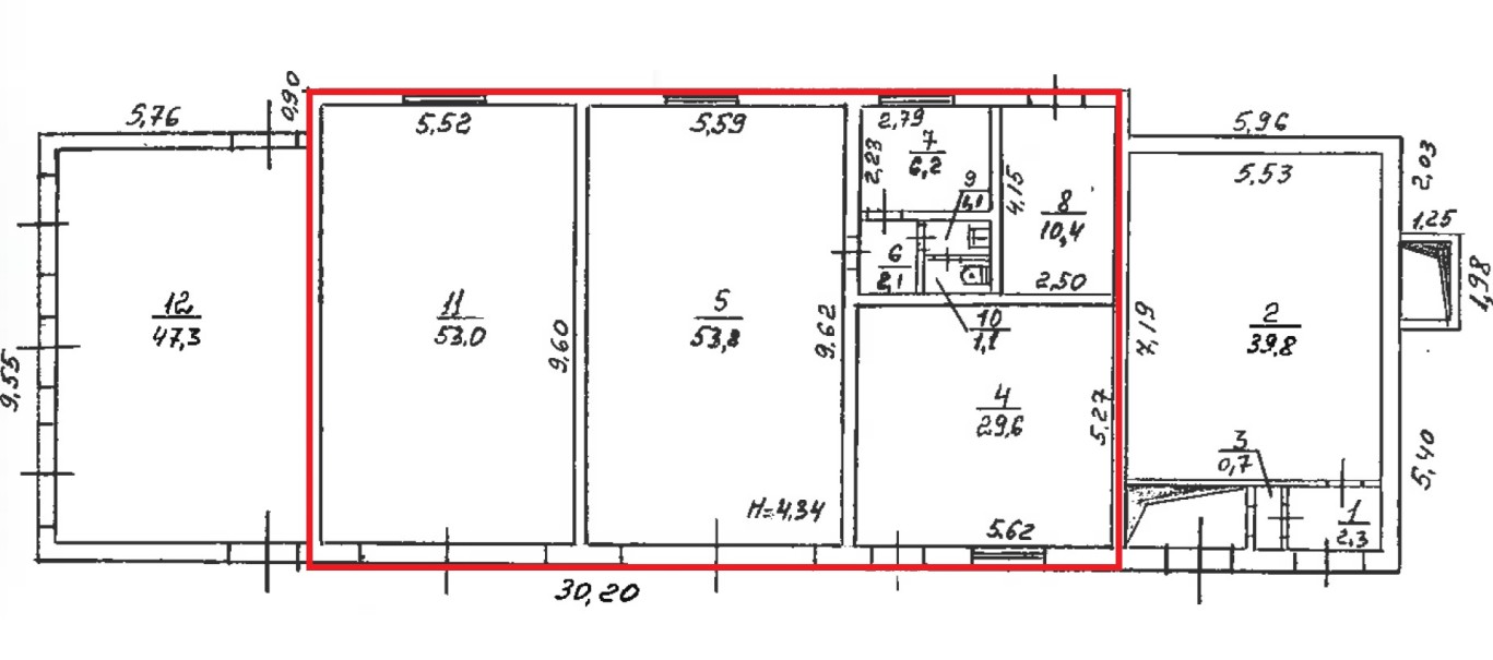
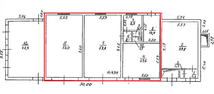
м. Київ, пр-т. Порика Василя, 12-А Оренда – група приміщень будівлі автоматичної дизельної електростанції, гаражів з трансформаторною підстанцією АТС-433, 434, літ. «Б», загальною площею – 157,30 м. кв. (В)

23 146.70 грн
147.15 грн / м2
Україна, м.Київ, Київ, проспект Василя Порика, 12А
Перейти до аукціону на сайті
  • Інформація
  • Опис
  • Документи
Дата оголошення пропозиції:
08 серпня 2025
Площа:
157.30 м2
Тип об’єкта:
Приміщення
Тип аукціону:
Англійський аукціон
Статус аукціону:
Аукціон не відбувся
Тип угоди:
Оренда
Розмір мінімального кроку:
1 500.00 ₴
Розмір гарантійного внеску:
13 888.02 ₴
Початок прийому пропозицій:
08.08.2025 07:41:54
Завершення прийому пропозицій:
08.09.2025 20:00:00
Проведення аукціону:
09.09.2025 11:05:00
Лот:
CLE001-UA-20250808-40985
№ лоту (УТК):
UTK230525_01U
Лот виставляється на торги (раз):
3
Стислий опис майна:
Пропонується до оренди група приміщень будівлі автоматичної дизельної електростанції, гаражів з трансформаторною підстанцією АТС-433, 434, літ. «Б», загальною площею – 157,30 кв.м. Будівля розташована у Подільському районі міста Києва, житловий масив Виноградар. Поруч розвинена інфраструктура, зупинки маршрутного транспорту, супермаркети, аптеки, кафе, ринок. Вхід з двору. Доступ 24/7.
Адреса місцезнаходження майна:
Україна, м.Київ, Київ, проспект Василя Порика, 12А
Схожі пропозиції
13.05.2025
м. Київ, вул. Курінного Петра, 2Б, літ. «А» (Святошинський р-н). Оренда – приміщення на 1-му поверсі, площею – 70,70 кв.м (В)
9 060.21 грн
128.15 грн / м2
Приміщення
м. Київ, вул. Курінного Петра, 2Б, літ. «А» (Святошинський р-н). Оренда – приміщення на 1-му поверсі, площею – 70,70 кв.м (В)
Україна, м.Київ, Київ, 03148, м. Київ, вул. Курінного Петра, 2Б (Святошинський р-н)
06.04.2023
м. Київ, вул. Ореста Васкула (Феодори Пушиної), 27-А. Оренда – приміщення 3-го поверху, площею 34,5 кв.м. (В)
7 160.13 грн
207.54 грн / м2
Приміщення
м. Київ, вул. Ореста Васкула (Феодори Пушиної), 27-А. Оренда – приміщення 3-го поверху, площею 34,5 кв.м. (В)
Україна, м.Київ, м. Київ, вулиця Ореста Васкула, 27
15.08.2023
м. Київ, вул. Василя Макуха (Шевцова Івана), 5. Довгострокова оренда – приміщення 3-го поверху площею 905,3 м2 (В)
132 137.59 грн
145.96 грн / м2
Приміщення
м. Київ, вул. Василя Макуха (Шевцова Івана), 5. Довгострокова оренда – приміщення 3-го поверху площею 905,3 м2 (В)
Україна, м.Київ, Київ, вул. Василя Макуха (Шевцова Івана), 5
09.09.2025
 м. Київ, вул. Архітектора Вербицького, 3 (Дарницький р-н). Оренда – Приміщення підвалу, площею 198,70 кв.м. (В)
13 591.08 грн
68.40 грн / м2
Приміщення
м. Київ, вул. Архітектора Вербицького, 3 (Дарницький р-н). Оренда – Приміщення підвалу, площею 198,70 кв.м. (В)
Україна, м.Київ, Київ, 02091, м. Київ, вул. Архітектора Вербицького , 3
Переглянуті пропозиції
26.11.2025
м. Харків, вул. Амосова,13 в. Оренда – приміщення цокольного поверху площею 31,60 кв.м (В)
948.00 грн
30.00 грн / м2
Приміщення
м. Харків, вул. Амосова,13 в. Оренда – приміщення цокольного поверху площею 31,60 кв.м (В)
Україна, Харківська обл., м. Харків, вул. Амосова,13 в
Полтавська обл., м. Кременчук, вул. Соборна, 17. Оренда – приміщення 3-го поверху площею 690,1 кв.м. (В)
3 795.55 грн
5.50 грн / м2
Приміщення
Полтавська обл., м. Кременчук, вул. Соборна, 17. Оренда – приміщення 3-го поверху площею 690,1 кв.м. (В)
Україна, Полтавська обл., м. Кременчук, вул. Соборна, 17