Вінницька обл., Вінницький р-н, смт. Турбів, вул. Миру, 113-А. Оренда – приміщення 2-го поверху площею 57,60 кв.м (В)

864.00 грн
15.00 грн / м2
Україна, Вінницька обл., Турбів, Турбів, вул. Миру, 113-А
Перейти до аукціону на сайті
  • Інформація
  • Опис
  • Документи
Дата оголошення пропозиції:
23 вересня 2025
Площа:
57.60 м2
Тип об’єкта:
Приміщення
Тип аукціону:
Англійський аукціон
Статус аукціону:
Аукціон не відбувся
Тип угоди:
Оренда
Розмір мінімального кроку:
20.00 ₴
Розмір гарантійного внеску:
518.40 ₴
Початок прийому пропозицій:
23.09.2025 10:47:44
Завершення прийому пропозицій:
28.10.2025 20:00:00
Проведення аукціону:
29.10.2025 11:30:00
Лот:
CLE001-UA-20250923-35395
№ лоту (УТК):
UTK120721_13U
Лот виставляється на торги (раз):
5
Стислий опис майна:
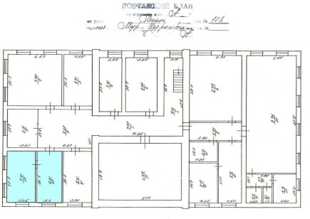
Пропонуються до оренди приміщення 2-го поверху площею 57,60 кв.м. будівлі, що знаходиться в центральній частині смт. Турбів, поруч ринок та торговельні заклади. Віддаленість від магістрального шосе та зупинки громадського транспорту орієнтовно 50 м. Характеристики - Кількість поверхів –2; - Загальна площа – 872,80 кв.м; - Площа запропонована до оренди – 57,60 кв.м; - Електропостачання.
Адреса місцезнаходження майна:
Україна, Вінницька обл., Турбів, Турбів, вул. Миру, 113-А
Схожі пропозиції
04.05.2023
Вінницька обл., Вінницький р-н, м. Немирів, вул. Горького, 20, оренда – навіс площею 237,5 кв.м. (В)
7 735.38 грн
32.57 грн / м2
Приміщення
Вінницька обл., Вінницький р-н, м. Немирів, вул. Горького, 20, оренда – навіс площею 237,5 кв.м. (В)
Україна, Вінницька обл., Немирів, пров. Горького 20
30.05.2025
Вінницька обл., Могилів-Подільський р-н., смт. Муровані Курилівці, вул. Соборна, 108. Оренда – Приміщення 2-го поверху площею 37,10 кв.м. (В)
534.24 грн
14.40 грн / м2
Приміщення
Вінницька обл., Могилів-Подільський р-н., смт. Муровані Курилівці, вул. Соборна, 108. Оренда – Приміщення 2-го поверху площею 37,10 кв.м. (В)
Україна, Вінницька обл., Муровані Курилівці, вул. Соборна, 108
16.04.2024
Він;ницька обл., м. Вінниця, вул. М. Оводова, 22;  Оренда – приміщення 3-го поверху площею 17,00 кв.м. (В)
3 036.54 грн
178.62 грн / м2
Приміщення
Він;ницька обл., м. Вінниця, вул. М. Оводова, 22; Оренда – приміщення 3-го поверху площею 17,00 кв.м. (В)
Україна, Вінницька обл., Вінниця, вулиця Миколи Оводова, 22
12.08.2025
Вінницька обл., м. Вінниця, вул. Соборна, 8. Оренда – приміщення підвалу будівлі ЛТУ-3, площею 88,4 кв.м. (В)
5 304.00 грн
60.00 грн / м2
Приміщення
Вінницька обл., м. Вінниця, вул. Соборна, 8. Оренда – приміщення підвалу будівлі ЛТУ-3, площею 88,4 кв.м. (В)
Україна, Вінницька обл., Вінниця, вулиця Соборна, 8