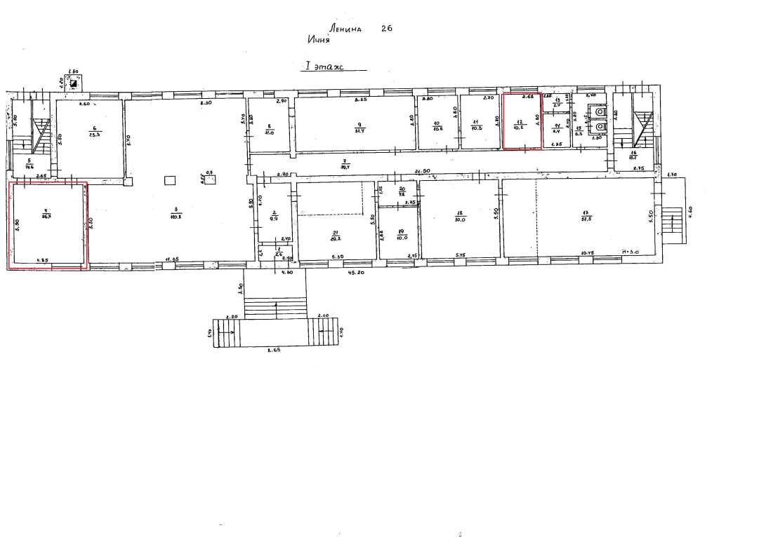
Чернігівська обл., м. Ічня, вул. Воскресінська, 26. Оренда – офісні приміщення 1-го поверху площею 36,90 кв.м. (В)

830.25 грн
22.50 грн / м2
Україна, Чернігівська обл., Ічня, вул. Воскресінська, 26
Перейти до аукціону на сайті
  • Інформація
  • Опис
  • Документи
Дата оголошення пропозиції:
03 жовтня 2025
Площа:
36.90 м2
Тип об’єкта:
Офіс
Тип аукціону:
Англійський аукціон
Статус аукціону:
Прийняття заяв на участь
Тип угоди:
Оренда
Розмір мінімального кроку:
50.00 ₴
Розмір гарантійного внеску:
498.15 ₴
Початок прийому пропозицій:
03.10.2025 14:31:30
Завершення прийому пропозицій:
03.11.2025 20:00:00
Проведення аукціону:
04.11.2025 11:10:00
Лот:
CLE001-UA-20251003-73493
№ лоту (УТК):
UTK160525_13U
Лот виставляється на торги (раз):
5
Стислий опис майна:
Пропонується до оренди офісні приміщення 1-поверху площею 36,90 кв.м. Будівля знаходиться в центральній частині міста, розвинений транспортний та пішохідний потоки. Характеристики: кількість поверхів – 3; загальна площа – 1 861,60 кв.м; площа запропонована до оренди – 36,90 кв.м; земельна ділянка – 0,1714 га (договір оренди).
Адреса місцезнаходження майна:
Україна, Чернігівська обл., Ічня, вул. Воскресінська, 26
Схожі пропозиції
21.03.2024
Чернігівська обл., м. Чернігів, проспект Миру, 28. Оренда – офісне приміщення 1 поверху площею 19,0 кв.м. (В)
2 371.96 грн
124.84 грн / м2
Офіс
Чернігівська обл., м. Чернігів, проспект Миру, 28. Оренда – офісне приміщення 1 поверху площею 19,0 кв.м. (В)
Україна, Чернігівська обл., м. Чернігів, проспект Миру, 28
14.02.2024
Чернігівська обл., м. Чернігів, проспект Миру, 28. Оренда – офісне приміщення 1 поверху площею 19,0 кв.м. (В)
2 371.96 грн
124.84 грн / м2
Офіс
Чернігівська обл., м. Чернігів, проспект Миру, 28. Оренда – офісне приміщення 1 поверху площею 19,0 кв.м. (В)
Україна, Чернігівська обл., м. Чернігів, проспект Миру, 28
14.02.2024
Чернігівська обл., м. Чернігів, проспект Миру, 35Б. Оренда – офісні приміщення 1 та 2 поверхів загальною площею 242,8 кв.м. (В)
18 865.56 грн
77.70 грн / м2
Офіс
Чернігівська обл., м. Чернігів, проспект Миру, 35Б. Оренда – офісні приміщення 1 та 2 поверхів загальною площею 242,8 кв.м. (В)
Україна, Чернігівська обл., м. Чернігів, проспект Миру, 35Б
26.08.2025
Чернігівська обл., м. Ічня , вул. Воскресінська, 26. Оренда – офісні приміщення  1-го поверху площею  36,90 кв.м.(В)
1 162.35 грн
31.50 грн / м2
Офіс
Чернігівська обл., м. Ічня , вул. Воскресінська, 26. Оренда – офісні приміщення 1-го поверху площею 36,90 кв.м.(В)
Україна, Чернігівська обл., Ічня, вул. Воскресінська, 26
Переглянуті пропозиції
22.04.2025
Полтавська обл., м. Полтава, вулиця Яківчанська, 7.Оренда – приміщення складське, загальною площею 430,30 кв.м. (В)
25 818.00 грн
60.00 грн / м2
Приміщення
Полтавська обл., м. Полтава, вулиця Яківчанська, 7.Оренда – приміщення складське, загальною площею 430,30 кв.м. (В)
Україна, Полтавська обл., м. Полтава, вул. Яківчанська, 7
16.07.2025
м. Харків, вул. Старошишківська,5а. Оренда – приміщення 1-го поверху площею 14,4 кв.м (В)
746.06 грн
51.81 грн / м2
Приміщення
м. Харків, вул. Старошишківська,5а. Оренда – приміщення 1-го поверху площею 14,4 кв.м (В)
Україна, Харківська обл., м. Харків, вул. Старошишківська,5а
31.07.2025
м. Київ, пр-т. Академіка Глушкова, 38 (Голосіївський р-н). Оренда – приміщення 1-го поверху, загальною площею – 143,60 кв. м.  (В)
15 862.06 грн
110.46 грн / м2
Приміщення
м. Київ, пр-т. Академіка Глушкова, 38 (Голосіївський р-н). Оренда – приміщення 1-го поверху, загальною площею – 143,60 кв. м. (В)
Україна, м.Київ, Київ, 03187, м. Київ, пр-т. Академіка Глушкова, 38 (Голосіївський р-н)
26.03.2024
Полтавська обл., Кременчуцький р-н, м. Кременчук, вулиця Соборна, 17;  Оренда – приміщення 1-го поверху площею 21,70 кв.м. (В)
1 316.32 грн
60.66 грн / м2
Приміщення
Полтавська обл., Кременчуцький р-н, м. Кременчук, вулиця Соборна, 17; Оренда – приміщення 1-го поверху площею 21,70 кв.м. (В)
Україна, Полтавська обл., Кременчук, Соборна вулиця, 17