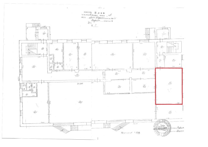
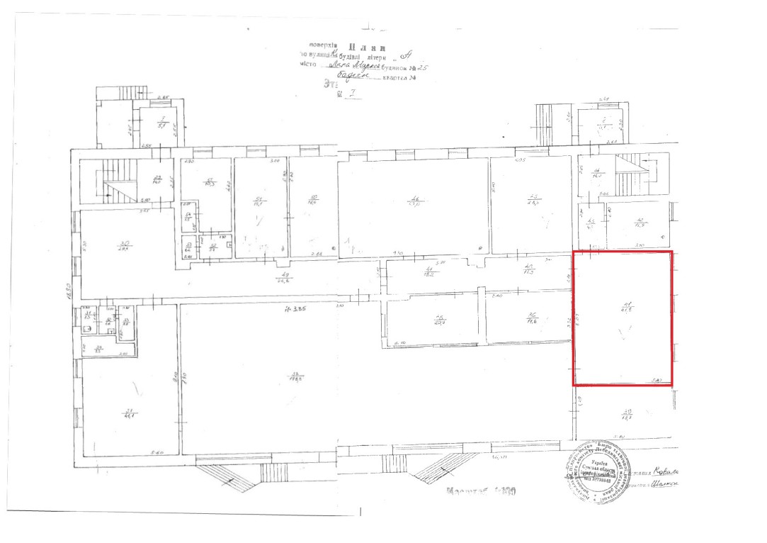
Сумськаобласть, м. Лебедин, вул. ГероївМайдану, буд. 25. Оренда –приміщення1-го поверху, площею 46,8 кв.м. (В)

993.56 грн
21.23 грн / м2
Україна, Сумська обл., Лебедин, вул. Героїв Майдану, 25
Перейти до аукціону на сайті
  • Інформація
  • Опис
  • Документи
Дата оголошення пропозиції:
03 жовтня 2025
Площа:
46.80 м2
Тип об’єкта:
Приміщення
Тип аукціону:
Англійський аукціон
Статус аукціону:
Прийняття заяв на участь
Тип угоди:
Оренда
Розмір мінімального кроку:
50.00 ₴
Розмір гарантійного внеску:
596.14 ₴
Початок прийому пропозицій:
03.10.2025 14:32:22
Завершення прийому пропозицій:
03.11.2025 20:00:00
Проведення аукціону:
04.11.2025 12:45:00
Лот:
CLE001-UA-20251003-76813
№ лоту (УТК):
UTK_250725_02U
Лот виставляється на торги (раз):
3
Стислий опис майна:
Пропонується до оренди приміщення 1-го поверху 3- поверхового будинку АТС, площею 46,8 кв.м. Знаходиться в центрі міста, гарна візуалізація. Є Можливість передачі приміщення в суборенду. Доступ вільний 24/7. Характеристики: Кількість поверхів – 3; Загальна площа – 2249,9 кв.м.; Площа запропонована до оренди – 46,8 кв.м.; Дозволена потужність – до 5 кВт; Водопостачання – наявне (санвузол заг.користування на поверсі); Опалення – відсутнє; Земельна ділянка –0,1595 га (договір оренди)
Адреса місцезнаходження майна:
Україна, Сумська обл., Лебедин, вул. Героїв Майдану, 25
Схожі пропозиції
22.04.2025
Сумська обл., смт. Недригайлів, вул. Шевченка, буд. 62;   Оренда – нежитлове приміщення площею 140,9 кв.м. (В)
2 541.84 грн
18.04 грн / м2
Приміщення
Сумська обл., смт. Недригайлів, вул. Шевченка, буд. 62; Оренда – нежитлове приміщення площею 140,9 кв.м. (В)
Україна, Сумська обл., Недригайлів, вул. Шевченка, буд. 62
26.01.2023
Сумська обл., м. Конотоп, пл. Миру, буд. 4. Оренда – приміщення 2-го поверху площею 14,5 кв.м. (В)
288.55 грн
19.90 грн / м2
Приміщення
Сумська обл., м. Конотоп, пл. Миру, буд. 4. Оренда – приміщення 2-го поверху площею 14,5 кв.м. (В)
Україна, Сумська обл., Конотоп, площа Миру, 4
30.04.2024
Сумська обл., Роменський р-н, с. Сакуниха, вул. Рябова, буд. 103. Оренда – нежитлове приміщення площею 11,80 кв.м. (В)
500.32 грн
42.40 грн / м2
Приміщення
Сумська обл., Роменський р-н, с. Сакуниха, вул. Рябова, буд. 103. Оренда – нежитлове приміщення площею 11,80 кв.м. (В)
Україна, Сумська обл., Роменський р-н, с. Сакуниха, вул. Рябова, буд. 103
26.11.2025
Сумська обл., Роменський р-н, с. Кімличка, вул. Миру, буд. 2. Оренда – нежитлове приміщення площею 29,30 кв. м. (В)
658.66 грн
22.48 грн / м2
Приміщення
Сумська обл., Роменський р-н, с. Кімличка, вул. Миру, буд. 2. Оренда – нежитлове приміщення площею 29,30 кв. м. (В)
Україна, Сумська обл., Кімличка, вул. Миру, буд. 2
Переглянуті пропозиції
05.11.2024
м. Харків, вул. Конторська,14.Оренда – приміщення 2-го поверху площею 20,5 кв.м (В)
1 420.65 грн
69.30 грн / м2
Приміщення
м. Харків, вул. Конторська,14.Оренда – приміщення 2-го поверху площею 20,5 кв.м (В)
Україна, Харківська обл., м. Харків, вул. Конторська,14
22.04.2025
Полтавська обл., м. Полтава, вулиця Яківчанська, 7.Оренда – приміщення складське, загальною площею 430,30 кв.м. (В)
25 818.00 грн
60.00 грн / м2
Приміщення
Полтавська обл., м. Полтава, вулиця Яківчанська, 7.Оренда – приміщення складське, загальною площею 430,30 кв.м. (В)
Україна, Полтавська обл., м. Полтава, вул. Яківчанська, 7
16.07.2025
м. Харків, вул. Старошишківська,5а. Оренда – приміщення 1-го поверху площею 14,4 кв.м (В)
746.06 грн
51.81 грн / м2
Приміщення
м. Харків, вул. Старошишківська,5а. Оренда – приміщення 1-го поверху площею 14,4 кв.м (В)
Україна, Харківська обл., м. Харків, вул. Старошишківська,5а
31.07.2025
м. Київ, пр-т. Академіка Глушкова, 38 (Голосіївський р-н). Оренда – приміщення 1-го поверху, загальною площею – 143,60 кв. м.  (В)
15 862.06 грн
110.46 грн / м2
Приміщення
м. Київ, пр-т. Академіка Глушкова, 38 (Голосіївський р-н). Оренда – приміщення 1-го поверху, загальною площею – 143,60 кв. м. (В)
Україна, м.Київ, Київ, 03187, м. Київ, пр-т. Академіка Глушкова, 38 (Голосіївський р-н)