м. Київ, вул. Ісаакяна, 3. Оренда – Приміщення 1-го поверху площею 57,90 кв.м. (В)

32 884.31 грн
567.95 грн / м2
Україна, м.Київ, Київ, вул. Ісаакяна, 3
Перейти до аукціону на сайті
  • Інформація
  • Опис
  • Документи
Дата оголошення пропозиції:
04 квітня 2022
Площа:
57.90 м2
Тип об’єкта:
Приміщення
Тип аукціону:
Англійський аукціон
Статус аукціону:
Аукціон не відбувся
Тип угоди:
Оренда
Розмір мінімального кроку:
350.00 ₴
Розмір гарантійного внеску:
19 730.58 ₴
Початок прийому пропозицій:
04.04.2022 15:26:35
Завершення прийому пропозицій:
03.05.2022 20:00:00
Лот:
UA-PS-2022-04-04-000001-1
№ лоту (УТК):
UTK040422_03T
Лот виставляється на торги (раз):
1
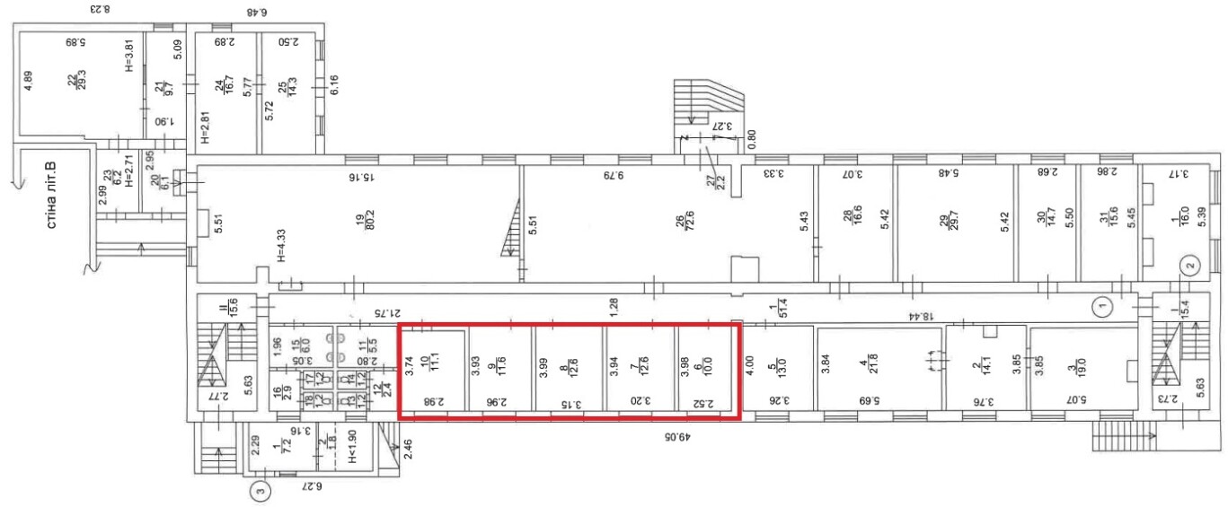
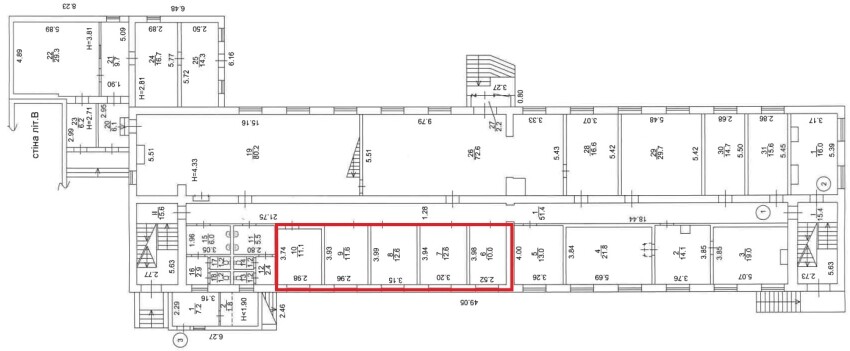
Стислий опис майна:
Пропонується до оренди офісні приміщення першого поверху, площею 57,90 кв.м. Розташування будівлі у Шевченківському районі міста Києва, місцевість Шулявка. Поруч розвинена інфраструктура, зупинки швидкісного трамваю, маршрутного та громадського транспорту, магазини, кафе, аптеки. Вхід з двору, через прохідну. Доступ вільний 24/7. Характеристики Загальна площа будівлі – 2069,60 м2; Площа запропонована до оренди – 57,90 м2; Опалення – міське (централізоване) Кількість поверхів – 3; Загальна площа земельної ділянки – 0,2892 га; Сан. вузол, водопостачання, каналізація – присутні (на поверсі)
Адреса місцезнаходження майна:
Україна, м.Київ, Київ, вул. Ісаакяна, 3
Схожі пропозиції
08.05.2024
ДОВГОСТРОКОВА ОРЕНДА! м. Київ, вул. Героїв Севастополя, 39/8 літ. «Е»;  Оренда – приміщення 2-го та 4-го поверхів, площею 1751,8 кв.м. (В)
239 944.05 грн
136.97 грн / м2
Приміщення
ДОВГОСТРОКОВА ОРЕНДА! м. Київ, вул. Героїв Севастополя, 39/8 літ. «Е»; Оренда – приміщення 2-го та 4-го поверхів, площею 1751,8 кв.м. (В)
Україна, м.Київ, Київ, вул. Героїв Севастополя, 39/8(Е)
12.01.2023
Довгострокова оренда. м. Київ, вул. Горького (Антоновича), 40. Оренда – приміщення 1-го поверху, площею 538,5 кв. м. (В)
11.09.2024
м. Київ, вул. Ісаакяна, 3, літ. «А»;  Оренда – частина приміщень 1-го поверху площею 159,2 кв.м. (П)
34 818.63 грн
218.71 грн / м2
Приміщення
м. Київ, вул. Ісаакяна, 3, літ. «А»; Оренда – частина приміщень 1-го поверху площею 159,2 кв.м. (П)
Україна, м.Київ, Київ, вулиця Ісаакяна, 3
м. Київ, Стратегічне шосе, 21-А. Оренда - приміщення 1-го, 2-го та 4-го поверхів площею 2290 кв.м. (В)
35 953.00 грн
15.70 грн / м2
Приміщення
м. Київ, Стратегічне шосе, 21-А. Оренда - приміщення 1-го, 2-го та 4-го поверхів площею 2290 кв.м. (В)
Україна, м.Київ, м. Київ, Стратегічне шосе, 21-А
Переглянуті пропозиції
19.09.2023
м. Київ, вул. Джона Маккейна, №40 , Оренда – приміщення підвалу, площею 44,26 м2 , (В)
10 498.03 грн
237.51 грн / м2
Приміщення
м. Київ, вул. Джона Маккейна, №40 , Оренда – приміщення підвалу, площею 44,26 м2 , (В)
Україна, м.Київ, Київ, вулиця Джона Маккейна, 40
м. Київ, вул. Джона Маккейна, №40, оренда – приміщення 2-го поверху, площею 920,80 м2 (В)
305 576.69 грн
331.86 грн / м2
Приміщення
м. Київ, вул. Джона Маккейна, №40, оренда – приміщення 2-го поверху, площею 920,80 м2 (В)
Україна, м.Київ, Київ, вул. Джона Маккейна, 40
21.10.2025
м. Київ, вул. Курінного Петра, 2Б, літ. «А» (Святошинський р-н). Оренда – приміщення на 1-му поверсі, площею – 160,70 кв.м (В)
14 536.92 грн
90.46 грн / м2
Приміщення
м. Київ, вул. Курінного Петра, 2Б, літ. «А» (Святошинський р-н). Оренда – приміщення на 1-му поверсі, площею – 160,70 кв.м (В)
Україна, м.Київ, Київ, 03148, м. Київ, вул. Курінного Петра, 2Б (Святошинський р-н)
11.03.2025
ДОВГОСТРОКОВА ОРЕНДА!  м. Київ, вул. Макіївська, 3;  Оренда – приміщення 2-го поверху, площею 724,10 кв.м.(В)
80 179.59 грн
110.73 грн / м2
Приміщення
ДОВГОСТРОКОВА ОРЕНДА! м. Київ, вул. Макіївська, 3; Оренда – приміщення 2-го поверху, площею 724,10 кв.м.(В)
Україна, м.Київ, Київ, вулиця Макіївська, 3