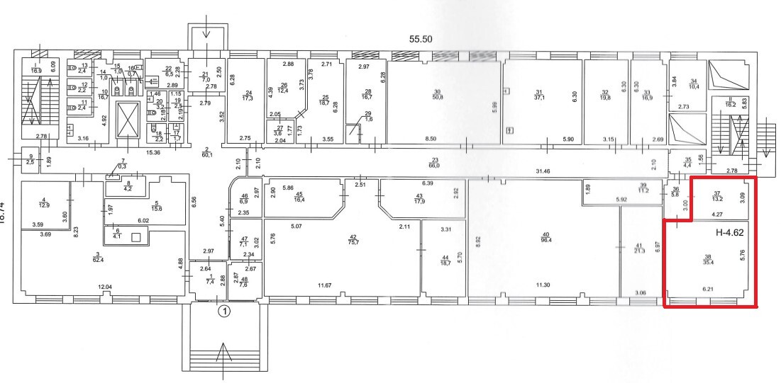
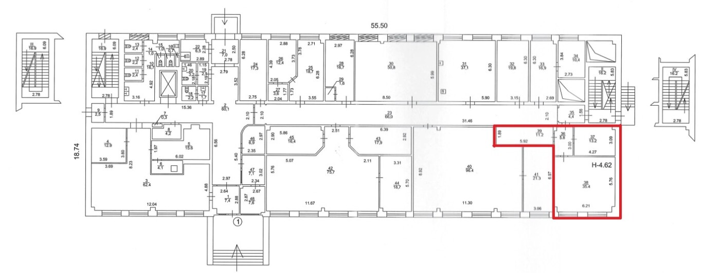
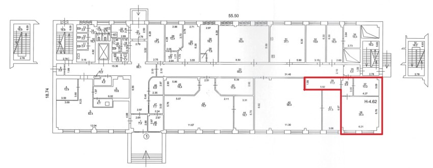
Київ, вул. Джона Маккейна, №40, оренда – приміщення 1-го поверху, площею 65,60 м2 (В)

38 417.33 грн
585.63 грн / м2
Україна, м.Київ, Київ, вул. Джона Маккейна, 40
Перейти до аукціону на сайті
  • Інформація
  • Опис
  • Документи
Дата оголошення пропозиції:
02 липня 2021
Площа:
65.60 м2
Тип об’єкта:
Приміщення
Тип аукціону:
Англійський аукціон
Статус аукціону:
Аукціон не відбувся
Тип угоди:
Оренда
Розмір мінімального кроку:
400.00 ₴
Розмір гарантійного внеску:
23 050.40 ₴
Початок прийому пропозицій:
02.07.2021 14:11:27
Завершення прийому пропозицій:
02.08.2021 20:00:00
Лот:
UA-PS-2021-07-02-000063-3
№ лоту (УТК):
UTK020721_03Т
Лот виставляється на торги (раз):
1
Стислий опис майна:
До оренди пропонуються приміщення 1-го поверху площею 65,60 м². Будівля знаходиться в Печерському районі міста Києва, місцевість Саперне поле, в пішому доступі до ст. м. Дружби Народів (до 5 хв.) та ст. м. Либідська, ст. м. Печерська (до 10 хв.), у районі розвинена інфраструктура й відмінна транспортна розв’язка, поруч торгові центри, супермаркети, парки. Високий автомобільний і пішохідний потоки. Вхід з вул. Джона Маккейна. Характеристики: • загальна площа об'єкта- 4778,7 кв. м.; • кількість поверхів – 4; • опалення централізоване (міське); • земельна ділянка – 0,461059 га. • водопостачання, каналізація, сан. вузол – присутні (на поверсі)
Адреса місцезнаходження майна:
Україна, м.Київ, Київ, вул. Джона Маккейна, 40
Схожі пропозиції
18.11.2022
м. Київ, вул. Дегтярівська, 28-А. Оренда – приміщення 3-го поверху площею 853,34 кв.м. (В)
73 318.97 грн
85.92 грн / м2
Приміщення
м. Київ, вул. Дегтярівська, 28-А. Оренда – приміщення 3-го поверху площею 853,34 кв.м. (В)
Україна, м.Київ, Київ, вулиця Дегтярівська, 28А
05.12.2023
м. Київ, вул. Василя Макуха (Івана Шевцова), 5;   Оренда – приміщення 1-го поверху будівлі, площею 401,5 кв.м. (В)
83 720.78 грн
208.52 грн / м2
Приміщення
м. Київ, вул. Василя Макуха (Івана Шевцова), 5; Оренда – приміщення 1-го поверху будівлі, площею 401,5 кв.м. (В)
Україна, м.Київ, м. Київ, вулиця Василя Макуха (Івана Шевцова), 5
10.05.2023
ДОВГОСТРОКОВА ОРЕНДА! м. Київ, вул. Героїв Севастополя, 39/8 літ. «Е». Оренда – приміщення 2-го та 4-го поверхів, площею 1751,8 м2 (В)
80 933.16 грн
46.20 грн / м2
Приміщення
ДОВГОСТРОКОВА ОРЕНДА! м. Київ, вул. Героїв Севастополя, 39/8 літ. «Е». Оренда – приміщення 2-го та 4-го поверхів, площею 1751,8 м2 (В)
Україна, м.Київ, Київ, вулиця Героїв Севастополя, 39
07.11.2024
м. Київ, вул. Василя Макуха (Івана Шевцова), 5;   Оренда – приміщення 1-го поверху будівлі, площею 401,5 кв.м. (В)
83 720.78 грн
208.52 грн / м2
Приміщення
м. Київ, вул. Василя Макуха (Івана Шевцова), 5; Оренда – приміщення 1-го поверху будівлі, площею 401,5 кв.м. (В)
Україна, м.Київ, м. Київ, вулиця Василя Макуха (Івана Шевцова), 5
Переглянуті пропозиції
20.12.2023
Полтавська обл., Лубенський р-н, с. Засулля, вул. Молодіжна, буд.20. Оренда – одноповерхова будівля площею 189,80 кв.м. (В)
1 275.46 грн
6.72 грн / м2
Будівля
Полтавська обл., Лубенський р-н, с. Засулля, вул. Молодіжна, буд.20. Оренда – одноповерхова будівля площею 189,80 кв.м. (В)
Україна, Полтавська обл., Лубенський р-н, с. Засулля, вул. Молодіжна, буд.20
15.10.2025
м.Харків, вул. Конторська,14. Оренда – приміщення 2-го поверху площею 12,3 кв.м (В)
516.60 грн
42.00 грн / м2
Приміщення
м.Харків, вул. Конторська,14. Оренда – приміщення 2-го поверху площею 12,3 кв.м (В)
Україна, Харківська обл., Харків, вулиця Конторська, 14
24.11.2023
Рівненська обл., м. Рівне, вул. Боярка, 54 а, б. Оренда – комплекс будівель площею 620,1 м. кв. (В)
29 392.74 грн
47.40 грн / м2
Будівля
Рівненська обл., м. Рівне, вул. Боярка, 54 а, б. Оренда – комплекс будівель площею 620,1 м. кв. (В)
Україна, Рівненська обл., м. Рівне, вул. Боярка, 54 а, б
21.08.2024
Полтавська обл., Полтавський р-н, cмт. Чутове, вул. Незалежності, 24. Оренда – приміщення 3-го поверху площею 30,60 кв.м. (В)
729.50 грн
23.84 грн / м2
Приміщення
Полтавська обл., Полтавський р-н, cмт. Чутове, вул. Незалежності, 24. Оренда – приміщення 3-го поверху площею 30,60 кв.м. (В)
Україна, Полтавська обл., Полтавський р-н, cмт. Чутове, вул. Незалежності, 24