Івано-Франківська обл., Калуський район, смт.Рожнятів, площа Єдності, 9, оренда – Приміщення 3-го поверху площею 109,6 м.кв. (В)

500.87 грн
4.57 грн / м2
Україна, Івано-Франківська обл., Рожнятів, площа Єдності, 9
Перейти до аукціону на сайті
  • Інформація
  • Опис
  • Документи
Дата оголошення пропозиції:
25 листопада 2022
Площа:
109.60 м2
Тип об’єкта:
Приміщення
Тип аукціону:
Англійський аукціон
Статус аукціону:
Аукціон не відбувся
Тип угоди:
Оренда
Розмір мінімального кроку:
40.00 ₴
Розмір гарантійного внеску:
300.52 ₴
Початок прийому пропозицій:
25.11.2022 10:07:28
Завершення прийому пропозицій:
26.12.2022 20:00:00
Проведення аукціону:
27.12.2022 11:00:00
Лот:
CLE001-UA-20221125-07920
№ лоту (УТК):
UTK070721_10Т
Лот виставляється на торги (раз):
10
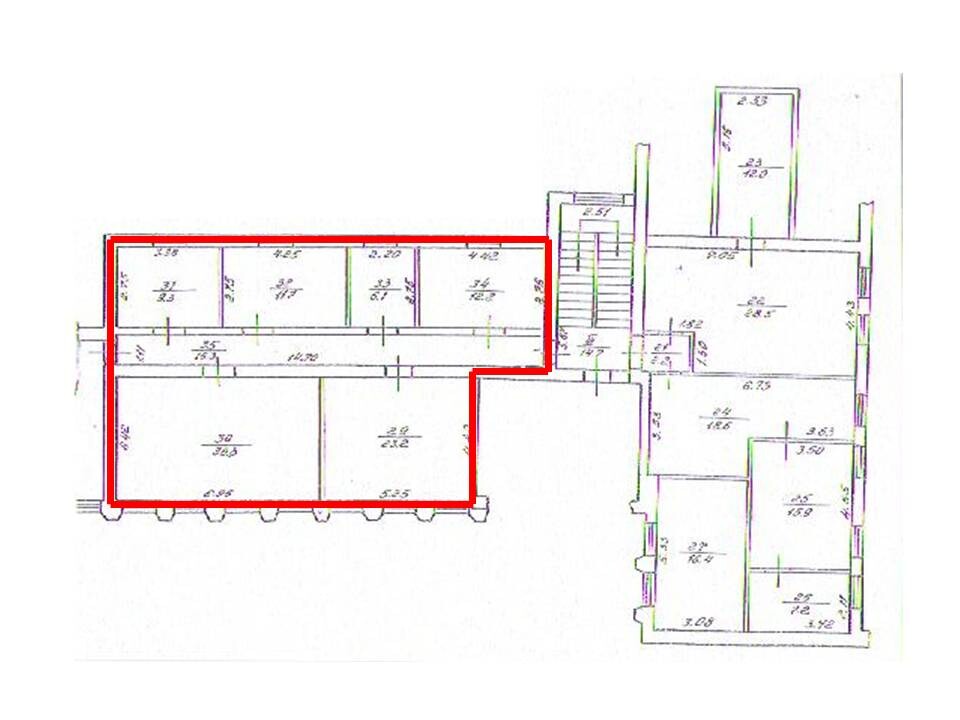
Стислий опис майна:
Пропонуються до оренди приміщення 3-го поверху. Будівля знаходиться в центральній частині населеного пункту. Високі пішохідний та транспортний потоки. Характеристики: • кількість поверхів – 3 • опалення газове • земельна ділянка – 0,1126 га (договір оренди)
Адреса місцезнаходження майна:
Україна, Івано-Франківська обл., Рожнятів, площа Єдності, 9
Схожі пропозиції
Івано-Франківська обл., м. Івано-Франківськ, вул. В.Симоненка, 1, оренда – приміщення 3-го поверху, площею 800,2 м.кв (В)
37 449.36 грн
46.80 грн / м2
Приміщення
Івано-Франківська обл., м. Івано-Франківськ, вул. В.Симоненка, 1, оренда – приміщення 3-го поверху, площею 800,2 м.кв (В)
Україна, Івано-Франківська обл., Івано-Франківськ, вул. В.Симоненка, 1
21.02.2023
Івано-Франківська обл., м. Івано-Франківськ, вул. Ребета, 2. Оренда – приміщення складу площею 36,5 кв.м. (В)
1 691.05 грн
46.33 грн / м2
Приміщення
Івано-Франківська обл., м. Івано-Франківськ, вул. Ребета, 2. Оренда – приміщення складу площею 36,5 кв.м. (В)
Україна, Івано-Франківська обл., Івано-Франківськ, вулиця Ребета, 2
03.04.2024
Івано-Франківська обл., Калуський  район, смт. Рожнятів,  площа Єдності,  9;   Оренда – приміщення 3-го поверху площею 109,6 м.кв. (В)
1 367.81 грн
12.48 грн / м2
Приміщення
Івано-Франківська обл., Калуський район, смт. Рожнятів, площа Єдності, 9; Оренда – приміщення 3-го поверху площею 109,6 м.кв. (В)
Україна, Івано-Франківська обл., Рожнятів, площа Єдності, 9
Івано-Франківська обл., смт. Верховина, вул. Франка, 6. Оренда – Приміщення 2-го поверху 18,4 кв.м.
342.24 грн
18.60 грн / м2
Приміщення
Івано-Франківська обл., смт. Верховина, вул. Франка, 6. Оренда – Приміщення 2-го поверху 18,4 кв.м.
Україна, Івано-Франківська обл., смт. Верховина, вул. Франка, 6
Переглянуті пропозиції
05.09.2025
Рівненська обл., Варашський р-н, с. Дібрівськ, вул.Центральна, 1. Оренда – приміщення 1 поверху площею 25,5 кв. м. (В)
510.00 грн
20.00 грн / м2
Приміщення
Рівненська обл., Варашський р-н, с. Дібрівськ, вул.Центральна, 1. Оренда – приміщення 1 поверху площею 25,5 кв. м. (В)
Україна, Рівненська обл., Варашський р-н, с. Дібрівськ, вул.Центральна, 1
17.02.2023
ДОВГОСТРОКОВА ОРЕНДА! Рівненська обл., м. Рівне вул. В. Чорновола, 1. Оренда – приміщення 5-го поверху загальною площею 483,4 кв.м. (В)
47 068.66 грн
97.37 грн / м2
Приміщення
ДОВГОСТРОКОВА ОРЕНДА! Рівненська обл., м. Рівне вул. В. Чорновола, 1. Оренда – приміщення 5-го поверху загальною площею 483,4 кв.м. (В)
Україна, Рівненська обл., Рівне, вулиця Вячеслава Чорновола, 1
26.08.2025
Полтавська обл., м. Зіньків, вулиця Воздвиженська, 36. Оренда – приміщення 2-го поверху площею 22,00 кв.м. (В)
607.20 грн
27.60 грн / м2
Приміщення
Полтавська обл., м. Зіньків, вулиця Воздвиженська, 36. Оренда – приміщення 2-го поверху площею 22,00 кв.м. (В)
Україна, Полтавська обл., Зіньків, вулиця Воздвиженська, 36
21.08.2024
м. Харків, вул. Конторська,14.Оренда – приміщення 2-го поверху площею 20,5 кв.м (В)
1 420.65 грн
69.30 грн / м2
Приміщення
м. Харків, вул. Конторська,14.Оренда – приміщення 2-го поверху площею 20,5 кв.м (В)
Україна, Харківська обл., м. Харків, вул. Конторська,14