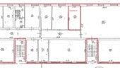
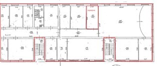
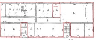
ДОВГОСТРОКОВА ОРЕНДА! Рівненська обл., м. Рівне вул. В. Чорновола, 1. Оренда – приміщення 5-го поверху загальною площею 483,4 кв.м. (В)

47 305.52 грн
97.86 грн / м2
Україна, Рівненська обл., Рівне, вулиця Вячеслава Чорновола, 1
Перейти до аукціону на сайті
  • Інформація
  • Опис
  • Документи
Дата оголошення пропозиції:
14 серпня 2023
Площа:
483.40 м2
Тип об’єкта:
Приміщення
Тип аукціону:
Англійський аукціон
Статус аукціону:
Аукціон не відбувся
Тип угоди:
Оренда
Розмір мінімального кроку:
500.00 ₴
Розмір гарантійного внеску:
28 383.31 ₴
Початок прийому пропозицій:
14.08.2023 22:23:33
Завершення прийому пропозицій:
14.09.2023 20:00:00
Проведення аукціону:
15.09.2023 11:30:00
Лот:
CLE001-UA-20230814-27756
№ лоту (УТК):
UTK081222_00Т
Лот виставляється на торги (раз):
8
Стислий опис майна:
Пропонується до оренди приміщення 5-го поверху загальною площею 483,4 кв.м. Будівля знаходиться в центральній частині міста. Розвинена інфраструктура, високі автомобільний та пішохідний потоки. Поряд центральна площа та міський парк. Приміщення потребують реконструкції електромережі . Характеристики: • Кількість поверхів – 5; • Загальна площа – 2032,6 кв.м.; • Площа, запропонована до оренди – загальною площею 483,4 кв.м.; • Опалення – централізоване; • Земельна ділянка - площа 0,1652 га. (договір оренди)
Адреса місцезнаходження майна:
Україна, Рівненська обл., Рівне, вулиця Вячеслава Чорновола, 1
Схожі пропозиції
07.11.2024
Рівненська обл. смт. Рокитне вул.Незалежності,9. Оренда – приміщення 1-го , 2-го та 3–го поверху загальною площею 365,6 м. кв. (В)
5 484.00 грн
15.00 грн / м2
Приміщення
Рівненська обл. смт. Рокитне вул.Незалежності,9. Оренда – приміщення 1-го , 2-го та 3–го поверху загальною площею 365,6 м. кв. (В)
Україна, Рівненська обл., Сарненський р-н., смт. Рокитне, вул. Незалежності, 9
07.12.2023
Рівненська обл., Рівненський р-н., с. Вельбівно, вул. Гагаріна, 15. Оренда – частина приміщення одноповерхової будівлі, площею 16,9 кв.м. (В)
253.50 грн
15.00 грн / м2
Приміщення
Рівненська обл., Рівненський р-н., с. Вельбівно, вул. Гагаріна, 15. Оренда – частина приміщення одноповерхової будівлі, площею 16,9 кв.м. (В)
Україна, Рівненська обл., Рівненський р-н., с. Вельбівно, вул. Гагаріна, 15
15.02.2023
Рівненська обл., м. Рівне вул. Орлова, 37. Оренда – приміщення 4го поверху площею 326,3 м. кв. (В)
15 075.06 грн
46.20 грн / м2
Приміщення
Рівненська обл., м. Рівне вул. Орлова, 37. Оренда – приміщення 4го поверху площею 326,3 м. кв. (В)
Україна, Рівненська обл., м. Рівне, вул. Орлова, 37
09.03.2023
Рівненська обл., смт. Володимирець вул. Поштова ,23. Оренда – приміщення 1-го поверху загальною площею 80,5 м.кв. (В)
1 787.10 грн
22.20 грн / м2
Приміщення
Рівненська обл., смт. Володимирець вул. Поштова ,23. Оренда – приміщення 1-го поверху загальною площею 80,5 м.кв. (В)
Україна, Рівненська обл., смт. Володимирець, вул. Поштова ,23
Переглянуті пропозиції
Закарпатська обл., м. Рахів, вул. Миру, 46. Оренда – приміщення 2-го поверху
580.64 грн
36.96 грн / м2
Приміщення
Закарпатська обл., м. Рахів, вул. Миру, 46. Оренда – приміщення 2-го поверху
Україна, Закарпатська обл., м. Рахів, вул. Миру, буд. 46
Сумська обл., м. Охтирка, вул. Чкалова, буд. 2. Оренда – офісне приміщення 1-го поверху площею 31,3 кв.м. (В)
2 504.00 грн
80.00 грн / м2
Офіс
Сумська обл., м. Охтирка, вул. Чкалова, буд. 2. Оренда – офісне приміщення 1-го поверху площею 31,3 кв.м. (В)
Україна, Сумська обл., м. Охтирка, вул. Чкалова, буд. 2
15.10.2025
Сумська обл., м. Суми, вул. Іллінська, буд. 2. Оренда – офісні приміщення 8-го поверху площею 81,30 кв.м. (В)
2 439.00 грн
30.00 грн / м2
Офіс
Сумська обл., м. Суми, вул. Іллінська, буд. 2. Оренда – офісні приміщення 8-го поверху площею 81,30 кв.м. (В)
Україна, Сумська обл., м. Суми, вул. Іллінська, буд. 2
09.08.2022
Полтавська обл., Кременчуцький р-н., смт. Градизьк, вул. Героїв Дніпра, буд. 15. Оренда – частина будівлі площею 33,60 кв.м. (В)
499.63 грн
14.87 грн / м2
Будівля
Полтавська обл., Кременчуцький р-н., смт. Градизьк, вул. Героїв Дніпра, буд. 15. Оренда – частина будівлі площею 33,60 кв.м. (В)
Україна, Полтавська обл., Градизьк, вул. Героїв Дніпра, буд. 15