Дніпропетровська обл., м. Кривий Ріг, вул. Героїв АТО, 30. Оренда – приміщення підвалу площею 154,50 кв.м. (В)

8 894.57 грн
57.57 грн / м2
Україна, Дніпропетровська обл., м. Кривий Ріг, вул. Героїв АТО, 30
Перейти до аукціону на сайті
  • Інформація
  • Опис
  • Документи
Дата оголошення пропозиції:
16 жовтня 2023
Площа:
154.50 м2
Тип об’єкта:
Приміщення
Тип аукціону:
Англійський аукціон
Статус аукціону:
Аукціон не відбувся
Тип угоди:
Оренда
Розмір мінімального кроку:
600.00 ₴
Розмір гарантійного внеску:
5 336.74 ₴
Початок прийому пропозицій:
16.10.2023 16:35:15
Завершення прийому пропозицій:
15.11.2023 20:00:00
Проведення аукціону:
16.11.2023 12:00:00
Лот:
CLE001-UA-20231016-93798
№ лоту (УТК):
UTK010923_02P
Лот виставляється на торги (раз):
2
Стислий опис майна:
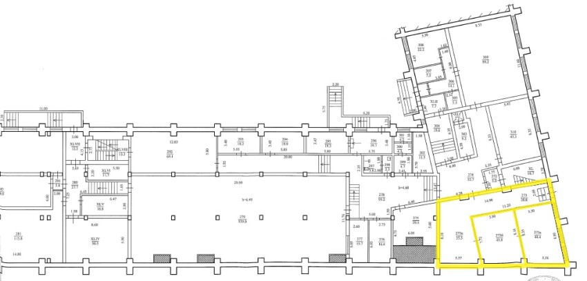
Пропонується до оренди приміщення підвалу з окремим входом площею 154,50 кв.м (приміщення №273, №№273а-273в). Розташування – 3-4-поверхова будівля (літ.А-4-5) знаходиться в центральному районі міста. Поруч знаходяться відділення банку, високий автомобільний і пішохідний потоки. Стан приміщення задовільний, підходить для офісу, Ідеальне місце під розвиток будь-якого бізнесу. Можливість передачі приміщень в суборенду. Характеристики: Кількість поверхів – 4-5 Загальна площа – 13040,10 кв.м Площа запропонована до оренди – 154,50 кв.м Електропостачання, теплопостачання, водопостачання централізоване; Площа земельної ділянки – 0,4712 га (договір оренди) Ресурсні податки – 8,32 грн за 1 кв.м
Адреса місцезнаходження майна:
Україна, Дніпропетровська обл., м. Кривий Ріг, вул. Героїв АТО, 30
Схожі пропозиції
18.03.2025
Дніпропетровська обл., м. Дніпро, просп. Героїв, 14. Оренда – приміщення 2-го поверху загальною площею 77,70 кв.м (В)
4 998.15 грн
64.33 грн / м2
Приміщення
Дніпропетровська обл., м. Дніпро, просп. Героїв, 14. Оренда – приміщення 2-го поверху загальною площею 77,70 кв.м (В)
Україна, Дніпропетровська обл., м. Дніпро, просп. Героїв, 14
26.11.2024
Дніпропетровська обл., м. Кривий Ріг, вул. Водоп`янова, 1а;  Оренда – приміщення 4-го поверху, площею 789,8 кв.м. (В)
7 108.20 грн
9.00 грн / м2
Приміщення
Дніпропетровська обл., м. Кривий Ріг, вул. Водоп`янова, 1а; Оренда – приміщення 4-го поверху, площею 789,8 кв.м. (В)
Україна, Дніпропетровська обл., Кривий Ріг, вулиця Водоп'янова, 1а
03.09.2025
Дніпропетровська обл., м. П’ятихатки, вул. Шатрова, 2. Оренда –  приміщення 1-го поверху загальною площею 78,60 кв.м  (В)
1 414.80 грн
18.00 грн / м2
Приміщення
Дніпропетровська обл., м. П’ятихатки, вул. Шатрова, 2. Оренда – приміщення 1-го поверху загальною площею 78,60 кв.м (В)
Україна, Дніпропетровська обл., м. П’ятихатки, вул. Шатрова, 2
18.07.2025
Дніпропетровська обл., м. Дніпро, вул. Січових Стрільців, 10. Оренда – приміщення 2-го поверху площею 18,20 кв.м. (В)
1 474.20 грн
81.00 грн / м2
Приміщення
Дніпропетровська обл., м. Дніпро, вул. Січових Стрільців, 10. Оренда – приміщення 2-го поверху площею 18,20 кв.м. (В)
Україна, Дніпропетровська обл., м. Дніпро, вул. Січових Стрільців, 10
Переглянуті пропозиції
23.07.2024
м. Київ, вул. Героїв Севастополя, 39/8, літ.«В»;   Оренда – приміщення 1-го поверху блоку зовнішніх споруд, площею 80,60 кв.м. (В)
15 771.00 грн
195.67 грн / м2
Приміщення
м. Київ, вул. Героїв Севастополя, 39/8, літ.«В»; Оренда – приміщення 1-го поверху блоку зовнішніх споруд, площею 80,60 кв.м. (В)
Україна, м.Київ, Київ, вул. Героїв Севастополя, 39/8(В)
04.11.2022
ДОВГОСТРОКОВА ОРЕНДА! м. Київ, вул. Антоновича, 40, оренда – приміщення 2-го поверху, площею 757,90 кв.м. (В)
161 872.28 грн
213.58 грн / м2
Приміщення
ДОВГОСТРОКОВА ОРЕНДА! м. Київ, вул. Антоновича, 40, оренда – приміщення 2-го поверху, площею 757,90 кв.м. (В)
Україна, м.Київ, Київ, вул. Антоновича, 40
27.11.2025
Довгострокова оренда! Дніпропетровська обл., м. Верхньодніпровськ, вул. Кам’янська (Титова), 8. Оренда – приміщення 3-го поверху площею 826,40 кв.м. (В)
19 833.60 грн
24.00 грн / м2
Приміщення
Довгострокова оренда! Дніпропетровська обл., м. Верхньодніпровськ, вул. Кам’янська (Титова), 8. Оренда – приміщення 3-го поверху площею 826,40 кв.м. (В)
Україна, Дніпропетровська обл., Верхньодніпровськ, вулиця Тітова, 8
19.09.2023
ДОВГОСТРОКОВА ОРЕНДА! м. Київ, вул. Салютна, 5а, літ. «Б». Оренда – приміщення 3-го та 4-го поверхів площею 992,8 кв.м. (В)