Рівненська обл., Рівненський р-н, с. Моквин, вул. Шевченка, 3. Оренда – виробничі приміщення загальною площею 144,7 м.кв. (В)

2 144.45 грн
14.82 грн / м2
Україна, Рівненська обл., Рівненський р-н, с. Моквин, вул. Шевченка, 3
Перейти до аукціону на сайті
  • Інформація
  • Опис
  • Документи
Дата оголошення пропозиції:
24 жовтня 2023
Площа:
144.70 м2
Тип об’єкта:
Приміщення
Тип аукціону:
Англійський аукціон
Статус аукціону:
Аукціон не відбувся
Тип угоди:
Оренда
Розмір мінімального кроку:
100.00 ₴
Розмір гарантійного внеску:
1 286.67 ₴
Початок прийому пропозицій:
24.10.2023 11:00:27
Завершення прийому пропозицій:
23.11.2023 20:00:00
Проведення аукціону:
24.11.2023 11:55:00
Лот:
CLE001-UA-20231024-46010
№ лоту (УТК):
UTK160821_06P
Лот виставляється на торги (раз):
10
Стислий опис майна:
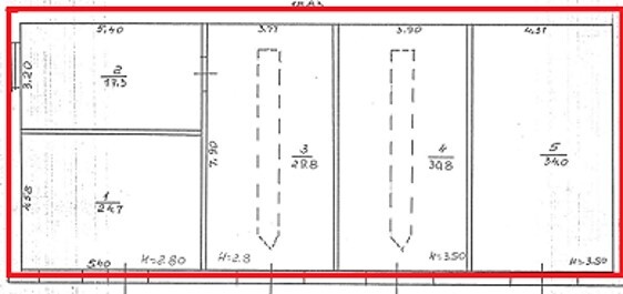
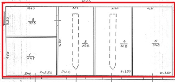
Пропонуються до оренди виробничі приміщення загальною площею 144,7 м.кв. ( 1 поверх) Будівлі знаходяться в центрі села, інфраструктура досить розвинена - поряд магазини, сільська рада. Можливість передачі приміщень в суборенду. Можливість внутрішніх перепланувань. Характеристики: Кількість поверхів – 1; Загальна площа – 239,2 м.кв.; Площа, запропонована до оренди – 144,7 м.кв.; Опалення – відсутнє; Земельна ділянка - площа 0,0830 га.
Адреса місцезнаходження майна:
Україна, Рівненська обл., Рівненський р-н, с. Моквин, вул. Шевченка, 3
Схожі пропозиції
10.08.2022
Рівненська обл., м. Костопіль, вул. Грушевського, 34. Оренда – приміщення 2 поверху площею 22,3 кв.м. (В)
887.54 грн
39.80 грн / м2
Приміщення
Рівненська обл., м. Костопіль, вул. Грушевського, 34. Оренда – приміщення 2 поверху площею 22,3 кв.м. (В)
Україна, Рівненська обл., м. Костопіль, вул. Грушевського, 34
29.11.2022
Рівненська обл., Рівненський р-н., с. Балашівка, вул. Незалежності, 52. Оренда – нежитлове приміщення площею 12,9 кв.м. (В)
665.38 грн
51.58 грн / м2
Приміщення
Рівненська обл., Рівненський р-н., с. Балашівка, вул. Незалежності, 52. Оренда – нежитлове приміщення площею 12,9 кв.м. (В)
Україна, Рівненська обл., Балашівка, вул. Незалежності, 52
08.12.2020
м. Рівне, вул. В. Чорновола, 1. Оренда – приміщення 5-го поверху площею 107,9 кв.м. (В)
2 990.99 грн
27.72 грн / м2
Приміщення
м. Рівне, вул. В. Чорновола, 1. Оренда – приміщення 5-го поверху площею 107,9 кв.м. (В)
Україна, Рівненська обл., м. Рівне, вул. В. Чорновола, буд. 1
Рівненська обл., м. Рівне вул.Соборна,56. Оренда – цокольні приміщення загальною площею 334,1 м.кв. (В)
19 772.04 грн
59.18 грн / м2
Приміщення
Рівненська обл., м. Рівне вул.Соборна,56. Оренда – цокольні приміщення загальною площею 334,1 м.кв. (В)
Україна, Рівненська обл., м. Рівне, вул.Соборна,56
Переглянуті пропозиції
10.01.2024
Сумська обл., Шосткинський р-н, с. Макове, вул. Озерна, буд.1;  Оренда – частина будівлі площею 101,3 кв.м. (В)
506.50 грн
5.00 грн / м2
Будівля
Сумська обл., Шосткинський р-н, с. Макове, вул. Озерна, буд.1; Оренда – частина будівлі площею 101,3 кв.м. (В)
Україна, Сумська обл., с. Макове, вул. Озерна, буд. 1
11.09.2024
м. Сокаль, вул.Шептицького,105. Оренда – приміщення 3-го поверху площею 430,50 кв. м (В)
13 612.41 грн
31.62 грн / м2
Приміщення
м. Сокаль, вул.Шептицького,105. Оренда – приміщення 3-го поверху площею 430,50 кв. м (В)
Україна, Львівська обл., м. Сокаль, вул.Шептицького,105