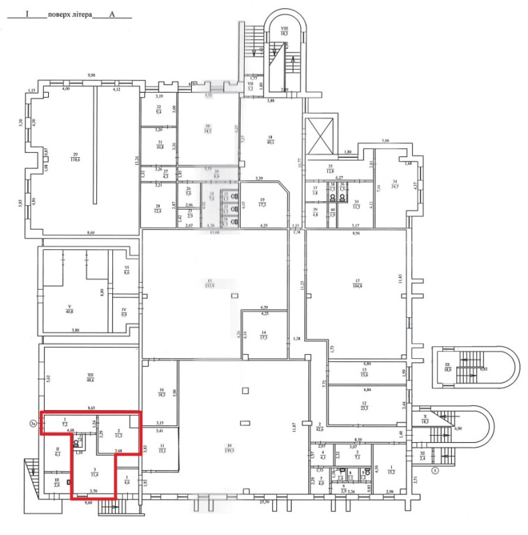
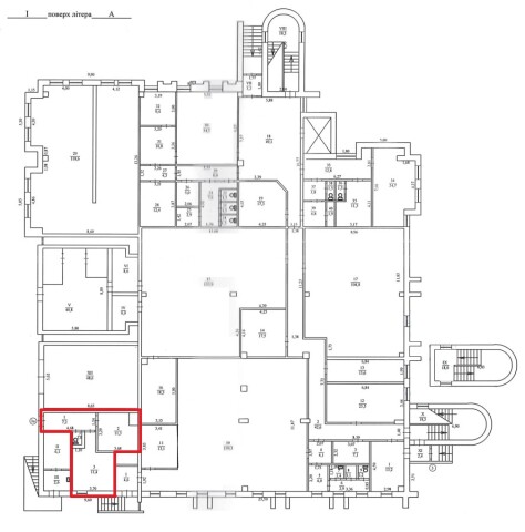
м. Київ, вул. Миколи Голего, 8; Оренда – приміщення 1-го поверху площею 30,9 кв.м. (В)

6 259.41 грн
202.57 грн / м2
Україна, м.Київ, Київ, вулиця Миколи Голего, 8
Перейти до аукціону на сайті
  • Інформація
  • Опис
  • Документи
Дата оголошення пропозиції:
08 грудня 2023
Площа:
30.90 м2
Тип об’єкта:
Приміщення
Тип аукціону:
Англійський аукціон
Статус аукціону:
Аукціон не відбувся
Тип угоди:
Оренда
Розмір мінімального кроку:
100.00 ₴
Розмір гарантійного внеску:
3 755.65 ₴
Початок прийому пропозицій:
08.12.2023 13:34:40
Завершення прийому пропозицій:
11.01.2024 20:00:00
Проведення аукціону:
12.01.2024 11:10:00
Лот:
CLE001-UA-20231208-66797
№ лоту (УТК):
UTK050822_6T
Лот виставляється на торги (раз):
10
Стислий опис майна:
Пропонуються до оренди приміщення 1-го поверху площею 30,9 кв.м . Розташування будівлі: у Солом'янському районі міста Києва, місцевість Караваєві дачі. Поруч розвинена інфраструктура, зупинки маршрутного транспорту, магазини, кафе, аптеки, середній автомобільний і пішохідний потоки. Характеристики • загальна площа будівлі – 5639,8 м2 ; • сан. вузол, каналізація, водопостачання – присутне; • кількість поверхів – 4; • енергетична потужність – 3 кВт; • опалення централізоване (міське); • площа земельної ділянки – 0,3625 га*; *земельна ділянка не є предметом оренди;
Адреса місцезнаходження майна:
Україна, м.Київ, Київ, вулиця Миколи Голего, 8
Схожі пропозиції
16.02.2023
м. Київ, вул. Маршала Малиновського, 19а. Оренда – приміщення 1-го поверху, площею 91,3 кв.м. (В)
13 178.24 грн
144.34 грн / м2
Приміщення
м. Київ, вул. Маршала Малиновського, 19а. Оренда – приміщення 1-го поверху, площею 91,3 кв.м. (В)
Україна, м.Київ, м. Київ, вулиця Маршала Малиновського, 19А
18.01.2023
м. Київ, вул. Героїв Севастополя, 39/8. Оренда – приміщення 1-го поверху площею 74,4 м² (В)
14 463.36 грн
194.40 грн / м2
Приміщення
м. Київ, вул. Героїв Севастополя, 39/8. Оренда – приміщення 1-го поверху площею 74,4 м² (В)
Україна, м.Київ, Київ, вулиця Героїв Севастополя, 39/8
м. Київ, вул. Макіївська, 3.Оренда – приміщення 2-го поверху площею 724,1 кв.м. (В)
23 417.39 грн
32.34 грн / м2
Приміщення
м. Київ, вул. Макіївська, 3.Оренда – приміщення 2-го поверху площею 724,1 кв.м. (В)
Україна, м.Київ, Київ, вул. Макіївська, 3
Переглянуті пропозиції
27.07.2023
Полтавська обл., м. Кременчук, вулиця Соборна, 17.Оренда приміщення 1-го поверху площею 21,70 кв.м. (В)
2 820.57 грн
129.98 грн / м2
Приміщення
Полтавська обл., м. Кременчук, вулиця Соборна, 17.Оренда приміщення 1-го поверху площею 21,70 кв.м. (В)
Україна, Полтавська обл., м. Кременчук, вулиця Соборна, 17
15.07.2025
Сумська обл., Шосткинський р-н, с. Тиманівка, вул. Перемоги, 37. Оренда – нежитлова будівля площею 55,30 кв.м. (В)
663.60 грн
12.00 грн / м2
Будівля
Сумська обл., Шосткинський р-н, с. Тиманівка, вул. Перемоги, 37. Оренда – нежитлова будівля площею 55,30 кв.м. (В)
Україна, Сумська обл., Шосткинський р-н, с. Тиманівка, вул. Перемоги, 37
23.02.2023
Вінницька обл., м. Вінниця, вул. Соборна, 8. Оренда – приміщення підвалу площею 174,7 кв.м. (В)
8 071.14 грн
46.20 грн / м2
Приміщення
Вінницька обл., м. Вінниця, вул. Соборна, 8. Оренда – приміщення підвалу площею 174,7 кв.м. (В)
Україна, Вінницька обл., Вінниця, вулиця Соборна, 8
21.08.2024
м.Харків, вул.Конторська,14 ;     Оренда–приміщення 2-го поверху площею 26,1 кв.м (В)
1 808.73 грн
69.30 грн / м2
Приміщення
м.Харків, вул.Конторська,14 ; Оренда–приміщення 2-го поверху площею 26,1 кв.м (В)
Україна, Харківська обл., Харків, вулиця Конторська, 14