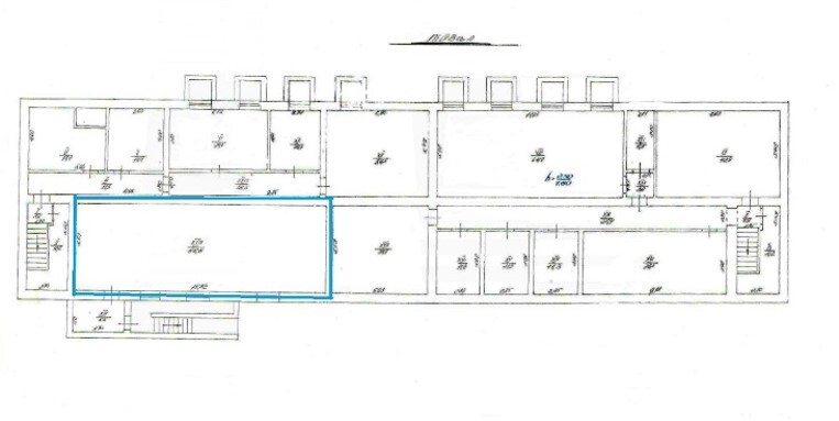
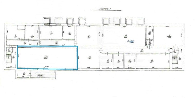
Львівська обл., м. Львів, вул. Виговського, 29а. Оренда – приміщення підвалу площею 86,80 кв.м (В)

7 812.87 грн
90.01 грн / м2
Україна, Львівська обл., м. Львів, вул. Виговського, 29а
Перейти до аукціону на сайті
  • Інформація
  • Опис
  • Документи
Дата оголошення пропозиції:
11 грудня 2023
Площа:
86.80 м2
Тип об’єкта:
Приміщення
Тип аукціону:
Англійський аукціон
Статус аукціону:
Аукціон не відбувся
Тип угоди:
Оренда
Розмір мінімального кроку:
200.00 ₴
Розмір гарантійного внеску:
4 687.72 ₴
Початок прийому пропозицій:
11.12.2023 14:05:28
Завершення прийому пропозицій:
15.01.2024 20:00:00
Проведення аукціону:
16.01.2024 11:10:00
Лот:
CLE001-UA-20231211-93268
№ лоту (УТК):
UTK140322_13P
Лот виставляється на торги (раз):
10
Стислий опис майна:
Пропонуються до оренди приміщення підвалу площею 86,80 кв. м. Будівля знаходиться у прицентральній частині міста, в районі з розвиненою інфраструктурою і відмінною транспортною розв’язкою. Стан приміщення потребує ремонту. Характеристики: кількість поверхів – 3 опалення централізоване, водопостачання, електропостачання, каналізаційна мережа Вільне до споживання електропостачання – 50 кВт земельна ділянка – 0,2057га (договір оренди)
Адреса місцезнаходження майна:
Україна, Львівська обл., м. Львів, вул. Виговського, 29а
Схожі пропозиції
16.12.2022
Львівська обл., с. Нове місто, вул. Центральна,1. Оренда – приміщення площею 19,40 кв. м (В)
500.13 грн
25.78 грн / м2
Приміщення
Львівська обл., с. Нове місто, вул. Центральна,1. Оренда – приміщення площею 19,40 кв. м (В)
Україна, Львівська обл., с. Нове місто, с. Нове місто, вул. Центральна,1
13.07.2023
Львівська обл., м. Кам’янка Бузька, вул. Грушевського, 15. Оренда – приміщення 1-го поверху площею 56,90 кв.м. (В)
1 481.68 грн
26.04 грн / м2
Приміщення
Львівська обл., м. Кам’янка Бузька, вул. Грушевського, 15. Оренда – приміщення 1-го поверху площею 56,90 кв.м. (В)
Україна, Львівська обл., м. Кам’янка Бузька, вул. Грушевського, 15
03.04.2024
Львівська обл., с. Нове місто, вул. Центральна,1. Оренда – приміщення площею 19,40 кв. м (В)
267.33 грн
13.78 грн / м2
Приміщення
Львівська обл., с. Нове місто, вул. Центральна,1. Оренда – приміщення площею 19,40 кв. м (В)
Україна, Львівська обл., с. Нове місто, с. Нове місто, вул. Центральна,1
27.12.2024
Львівська обл., м. Ходорів, вул. Шевченка, 119. Оренда – нежитлове приміщення площею 47,2 кв. м. та гаражі – 137,7 кв. м. (В)
1 930.36 грн
10.44 грн / м2
Приміщення
Львівська обл., м. Ходорів, вул. Шевченка, 119. Оренда – нежитлове приміщення площею 47,2 кв. м. та гаражі – 137,7 кв. м. (В)
Україна, Львівська обл., м. Ходорів, вул. Шевченка, 119
Переглянуті пропозиції
м. Київ, вул. Малиновського, 19-А, літ. «А». Оренда – приміщення 1го поверху, площею 75,50 кв.м. (В)
12 979.96 грн
171.92 грн / м2
Приміщення
м. Київ, вул. Малиновського, 19-А, літ. «А». Оренда – приміщення 1го поверху, площею 75,50 кв.м. (В)
Україна, м.Київ, Київ, . Малиновського, 19-А, літ. «А»
21.06.2024
Рівненська обл., Дубенський р-н., смт. Демидівка, вул. Миру, 28. Оренда – складські приміщення 1 поверху площею 128 м. кв. (В)
2 264.32 грн
17.69 грн / м2
Приміщення
Рівненська обл., Дубенський р-н., смт. Демидівка, вул. Миру, 28. Оренда – складські приміщення 1 поверху площею 128 м. кв. (В)
Україна, Рівненська обл., Дубенський р-н., смт. Демидівка, вул. Миру, 28
09.06.2023
Харківська обл., смт. Борова, вул. Центральна, 3, будівля Літ. А. Оренда – приміщення першого поверху, площею 65,0 кв.м. (В)
500.50 грн
7.70 грн / м2
Приміщення
Харківська обл., смт. Борова, вул. Центральна, 3, будівля Літ. А. Оренда – приміщення першого поверху, площею 65,0 кв.м. (В)
Україна, Харківська обл., смт. Борова, вул. Центральна, 3, будівля Літ. А
26.04.2023
ДОВГОСТРОКОВА ОРЕНДА! м. Київ, вул. Ісаакяна, 3. Оренда – Приміщення 3-го поверху площею 501,5 кв.м. (В)
75 957.19 грн
151.46 грн / м2
Приміщення
ДОВГОСТРОКОВА ОРЕНДА! м. Київ, вул. Ісаакяна, 3. Оренда – Приміщення 3-го поверху площею 501,5 кв.м. (В)
Україна, м.Київ, Київ, вулиця Ісаакяна, 3