Рівненська обл., м. Рівне, вул. Орлова, 37. Оренда – приміщення 5-го поверху загальною площею 703 кв.м. (В)

55 705.72 грн
79.24 грн / м2
Україна, Рівненська обл., м. Рівне, вул. Орлова, 37
Перейти до аукціону на сайті
  • Інформація
  • Опис
  • Документи
Дата оголошення пропозиції:
23 січня 2024
Площа:
703.00 м2
Тип об’єкта:
Приміщення
Тип аукціону:
Англійський аукціон
Статус аукціону:
Аукціон не відбувся
Тип угоди:
Оренда
Розмір мінімального кроку:
1 000.00 ₴
Розмір гарантійного внеску:
33 423.43 ₴
Початок прийому пропозицій:
23.01.2024 12:11:43
Завершення прийому пропозицій:
22.02.2024 20:00:00
Проведення аукціону:
23.02.2024 12:05:00
Лот:
CLE001-UA-20240123-85373
№ лоту (УТК):
UTK080222_10P
Лот виставляється на торги (раз):
10
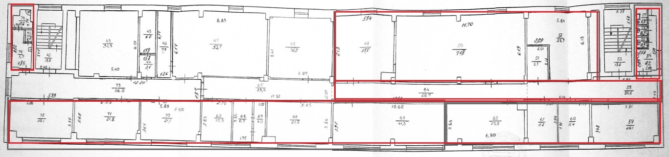
Стислий опис майна:
Пропонуються до оренди приміщення 5-го поверху загальною площею 703 м. кв. Будівля знаходиться в центральній частині міста. Розвинена інфраструктура, досить високі автомобільний та пішохідний потоки. Поряд стоянка для автомобілів . Приміщення потребують ремонту та реконструкції електромережі. Характеристики: Кількість поверхів – 6 ; Загальна площа – 4535,1 м. кв ; Площа, запропонована до оренди – 703 м.кв. ; Опалення – централізоване; • Земельна ділянка - площа 0,3639 га. (договір оренди)
Адреса місцезнаходження майна:
Україна, Рівненська обл., м. Рівне, вул. Орлова, 37
Схожі пропозиції
Рівненська обл., м. Корець, вул. Київська, 67а. Оренда – приміщення 2-го поверху
906.29 грн
14.98 грн / м2
Приміщення
Рівненська обл., м. Корець, вул. Київська, 67а. Оренда – приміщення 2-го поверху
Україна, Рівненська обл., м. Корець, вул. Київська, буд. 67а
Рівненська обл., м. Рівне вул.Соборна,56. Оренда – цокольні приміщення загальною площею 334,1 м.кв. (В)
39 544.08 грн
118.36 грн / м2
Приміщення
Рівненська обл., м. Рівне вул.Соборна,56. Оренда – цокольні приміщення загальною площею 334,1 м.кв. (В)
Україна, Рівненська обл., м. Рівне, вул.Соборна,56
24.01.2023
Рівненська обл., м. Острог, пр-т. Незалежності, 7. Оренда – приміщення 1-го та 2-го поверху площею 21,6 кв.м. (В)
500.04 грн
23.15 грн / м2
Приміщення
Рівненська обл., м. Острог, пр-т. Незалежності, 7. Оренда – приміщення 1-го та 2-го поверху площею 21,6 кв.м. (В)
Україна, Рівненська обл., Острог, Острог
Переглянуті пропозиції
19.09.2023
м. Київ, вул. Антоновича, 40. Оренда – приміщення підвалу площею 77,0 кв.м. (В)
23 720.62 грн
308.06 грн / м2
Приміщення
м. Київ, вул. Антоновича, 40. Оренда – приміщення підвалу площею 77,0 кв.м. (В)
Україна, м.Київ, Київ, вул. Антоновича, 40
14.02.2023
Сумська обл., м. Охтирка, вул. Чкалова, буд. 2. Оренда – офісна будівля площею 183,90 кв.м. (В)
1 701.08 грн
9.25 грн / м2
Офіс
Сумська обл., м. Охтирка, вул. Чкалова, буд. 2. Оренда – офісна будівля площею 183,90 кв.м. (В)
Україна, Сумська обл., м. Охтирка, вул. Чкалова, буд. 2
16.12.2022
Рівненська обл., м. Рівне вул.Соборна,56. Оренда – цокольні приміщення загальною площею 334,1 м.кв. (В)
15 435.42 грн
46.20 грн / м2
Приміщення
Рівненська обл., м. Рівне вул.Соборна,56. Оренда – цокольні приміщення загальною площею 334,1 м.кв. (В)
Україна, Рівненська обл., м. Рівне, вул.Соборна,56
26.11.2025
Чернігівська обл., м. Чернігів, проспект Миру, 35Б. Оренда – приміщення 2 -го поверху площею 77,00 кв.м. (В)
2 310.00 грн
30.00 грн / м2
Приміщення
Чернігівська обл., м. Чернігів, проспект Миру, 35Б. Оренда – приміщення 2 -го поверху площею 77,00 кв.м. (В)
Україна, Чернігівська обл., Чернігів, проспект Миру, 35Б