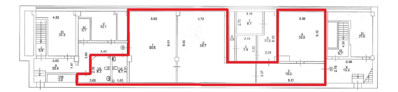
м. Київ, вул. Антоновича, 40; Оренда – група приміщень на 9-му поверсі, площею - 174,20 кв.м. (В)

52 113.49 грн
299.16 грн / м2
Україна, м.Київ, Київ, вул. Антоновича, 40
Перейти до аукціону на сайті
  • Інформація
  • Опис
  • Документи
Дата оголошення пропозиції:
05 грудня 2024
Площа:
174.20 м2
Тип об’єкта:
Приміщення
Тип аукціону:
Англійський аукціон
Статус аукціону:
Аукціон не відбувся
Тип угоди:
Оренда
Розмір мінімального кроку:
3 000.00 ₴
Розмір гарантійного внеску:
31 268.09 ₴
Початок прийому пропозицій:
05.12.2024 20:01:14
Завершення прийому пропозицій:
06.01.2025 20:00:00
Проведення аукціону:
07.01.2025 12:30:00
Лот:
CLE001-UA-20241205-51673
№ лоту (УТК):
UTK251024_03T
Лот виставляється на торги (раз):
2
Стислий опис майна:
Пропонуються до оренди приміщення 9-го поверху, площею 174,20 кв.м. Будівля знаходиться у центрі міста на перехресті вулиць Жилянська та Антоновича. Поруч з БЦ розташована зупинка міського автотранспорту, в 5-ти хвилинах ходьби знаходиться станція метро «Олімпійська», парк Тараса Шевченка. Вхід з вул. Антоновича. Характеристики: • кількість поверхів – 9; • загальна площа будівлі – 7 649,30 м2; • кондиціонування – загальне по будівлі (керування на поверсі) • опалення централізоване (міське); • земельна ділянка – 0,2099 га; • сан. вузол, водопостачання, каналізація – присутні.
Адреса місцезнаходження майна:
Україна, м.Київ, Київ, вул. Антоновича, 40
Схожі пропозиції
31.05.2023
ДОВГОСТРОКОВА ОРЕНДА! м. Київ, вул. Салютна, 5а, літ. «Б». Оренда – приміщення 3-го та 4-го поверхів площею 992,8 кв.м. (В)
26.12.2024
м. Київ, вул. Василя Макуха (Івана Шевцова), 5;   Оренда – приміщення 1-го поверху будівлі, площею 401,5 кв.м. (В)
83 720.78 грн
208.52 грн / м2
Приміщення
м. Київ, вул. Василя Макуха (Івана Шевцова), 5; Оренда – приміщення 1-го поверху будівлі, площею 401,5 кв.м. (В)
Україна, м.Київ, м. Київ, вулиця Василя Макуха (Івана Шевцова), 5
29.03.2024
ДОВГОСТРОКОВА ОРЕНДА! м. Київ, вул. Героїв Севастополя, 39/8 літ. «Е»;  Оренда – приміщення 2-го та 4-го поверхів, площею 1751,8 кв.м. (В)
239 944.05 грн
136.97 грн / м2
Приміщення
ДОВГОСТРОКОВА ОРЕНДА! м. Київ, вул. Героїв Севастополя, 39/8 літ. «Е»; Оренда – приміщення 2-го та 4-го поверхів, площею 1751,8 кв.м. (В)
Україна, м.Київ, Київ, вул. Героїв Севастополя, 39/8(Е)
Переглянуті пропозиції
20.11.2024
Львівська обл., м. Золочів, вул. Л.Українки,16. Оренда – одноповерхова будівля площею 248,5 кв.м (В)
5 467.00 грн
22.00 грн / м2
Будівля
Львівська обл., м. Золочів, вул. Л.Українки,16. Оренда – одноповерхова будівля площею 248,5 кв.м (В)
Україна, Львівська обл., м. Золочів, вул. Л.Українки,16