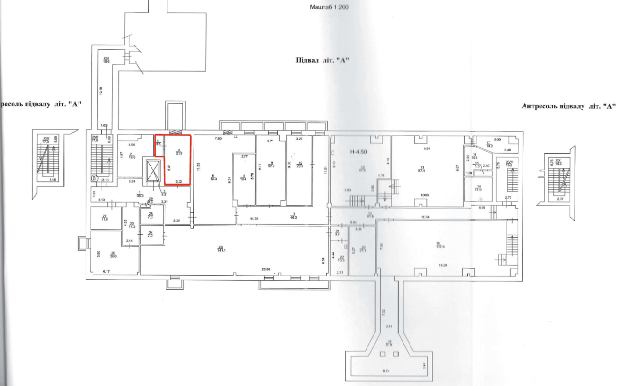
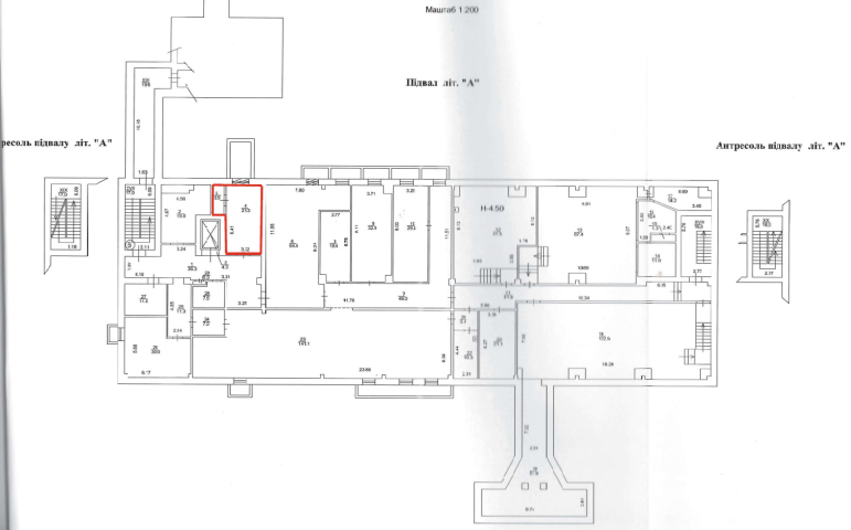
м. Київ, вул. Джона Маккейна, 40, літ. «А» (Печерський р-н). Оренда – група приміщень у підвалі, площею 24,80 кв.м (В)

7 127.77 грн
287.41 грн / м2
Україна, м.Київ, Київ, Адреса: 01042, м. Київ, вул. Джона Маккейна, 40, літ. «А» (Печерський р-н)
Перейти до аукціону на сайті
  • Інформація
  • Опис
  • Документи
Дата оголошення пропозиції:
21 лютого 2025
Площа:
24.80 м2
Тип об’єкта:
Приміщення
Тип аукціону:
Англійський аукціон
Статус аукціону:
Аукціон не відбувся
Тип угоди:
Оренда
Розмір мінімального кроку:
350.00 ₴
Розмір гарантійного внеску:
4 276.67 ₴
Початок прийому пропозицій:
21.02.2025 00:15:29
Завершення прийому пропозицій:
20.03.2025 20:00:00
Проведення аукціону:
21.03.2025 12:05:00
Лот:
CLE001-UA-20250220-31129
№ лоту (УТК):
UTK200225_33U
Лот виставляється на торги (раз):
1
Стислий опис майна:
До оренди пропонується група приміщень у підвалі, площею 24,80 кв. м. Будівля знаходиться в Печерському районі міста Києва, місцевість Саперне поле, в пішому доступі до ст. м. Дружби Народів (до 5 хв.) та ст. м. Либідська, ст. м. Печерська (до 10 хв.), у районі розвинена інфраструктура й відмінна транспортна розв’язка, поруч торгові центри, супермаркети, парки.. Вхід з вул. Джона Маккейна. Характеристики • кількість поверхів – 4; • загальна площа – 4 778,70 кв. м; • площа запропонована до оренди – 24,80 кв.м; • опалення централізоване (міське); • водопостачання, каналізація, сан. вузол – відсутні на поверсі; • земельна ділянка – 0,465 га (договір оренди)
Адреса місцезнаходження майна:
Україна, м.Київ, Київ, Адреса: 01042, м. Київ, вул. Джона Маккейна, 40, літ. «А» (Печерський р-н)
Схожі пропозиції
21.10.2025
м. Київ, вул. Макіївська, 3 (Оболонський р-н) (В). Оренда – приміщення 2-го поверху, площею 724,10 кв. м.
43 446.00 грн
60.00 грн / м2
Приміщення
м. Київ, вул. Макіївська, 3 (Оболонський р-н) (В). Оренда – приміщення 2-го поверху, площею 724,10 кв. м.
Україна, м.Київ, Київ, вулиця Макіївська, 3
05.07.2023
ДОВГОСТРОКОВА ОРЕНДА! м. Київ, вул. Салютна, 5а, літ. «Б». Оренда – приміщення 3-го та 4-го поверхів площею 992,8 кв.м. (В)
31.07.2025
м. Київ, вул. Князів Острозьких (Московська), 23 (В). Оренда – приміщення підвалу будівлі, площею 254,50 м2
41 987.41 грн
164.98 грн / м2
Приміщення
м. Київ, вул. Князів Острозьких (Московська), 23 (В). Оренда – приміщення підвалу будівлі, площею 254,50 м2
Україна, м.Київ, Київ, вулиця Князів Острозьких, 23
08.04.2025
м. Київ, вул. Наталії Ужвій, 1 (Подільський р-н). Оренда – приміщення 2-го поверху, загальною площею – 78,90 м. кв. (В)
10 320.12 грн
130.80 грн / м2
Приміщення
м. Київ, вул. Наталії Ужвій, 1 (Подільський р-н). Оренда – приміщення 2-го поверху, загальною площею – 78,90 м. кв. (В)
Україна, м.Київ, Київ, вулиця Наталії Ужвій, 1
Переглянуті пропозиції
15.07.2025
Харківська обл., м. Первомайський, мікрорайон 3, буд.1-А. Оренда – приміщення першого поверху, площею 145,2 кв.м. (В)
1 742.40 грн
12.00 грн / м2
Приміщення
Харківська обл., м. Первомайський, мікрорайон 3, буд.1-А. Оренда – приміщення першого поверху, площею 145,2 кв.м. (В)
Україна, Харківська обл., м. Первомайський, мікрорайон 3, буд.1-А
24.11.2023
Рівненська обл., Рівненський р-н, с. Моквин, вул. Шевченка, 3. Оренда – виробничі приміщення загальною площею 144,7 м.кв. (В)
2 144.45 грн
14.82 грн / м2
Приміщення
Рівненська обл., Рівненський р-н, с. Моквин, вул. Шевченка, 3. Оренда – виробничі приміщення загальною площею 144,7 м.кв. (В)
Україна, Рівненська обл., Рівненський р-н, с. Моквин, вул. Шевченка, 3
10.01.2024
Сумська обл., Шосткинський р-н, с. Макове, вул. Озерна, буд.1;  Оренда – частина будівлі площею 101,3 кв.м. (В)
506.50 грн
5.00 грн / м2
Будівля
Сумська обл., Шосткинський р-н, с. Макове, вул. Озерна, буд.1; Оренда – частина будівлі площею 101,3 кв.м. (В)
Україна, Сумська обл., с. Макове, вул. Озерна, буд. 1
11.09.2024
м. Сокаль, вул.Шептицького,105. Оренда – приміщення 3-го поверху площею 430,50 кв. м (В)
13 612.41 грн
31.62 грн / м2
Приміщення
м. Сокаль, вул.Шептицького,105. Оренда – приміщення 3-го поверху площею 430,50 кв. м (В)
Україна, Львівська обл., м. Сокаль, вул.Шептицького,105