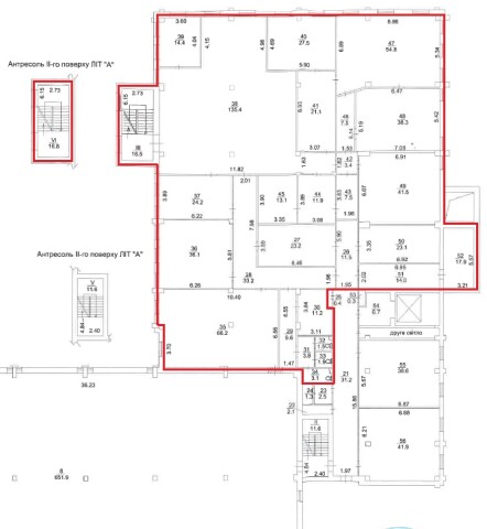
м. Київ, пр-т. Оболонський, 32-Б. частина приміщень 2-го поверху, площею 690,20 кв. м. (В)

110 507.92 грн
160.11 грн / м2
Україна, м.Київ, Київ, пр-т. Оболонський, 32-Б
Перейти до аукціону на сайті
  • Інформація
  • Опис
  • Документи
Дата оголошення пропозиції:
04 березня 2022
Площа:
690.20 м2
Тип об’єкта:
Приміщення
Тип аукціону:
Англійський аукціон
Статус аукціону:
Аукціон не відбувся
Тип угоди:
Оренда
Розмір мінімального кроку:
1 200.00 ₴
Розмір гарантійного внеску:
66 304.75 ₴
Початок прийому пропозицій:
04.03.2022 09:56:44
Завершення прийому пропозицій:
29.03.2022 20:00:00
Лот:
UA-PS-2022-03-04-000009-3
№ лоту (УТК):
UTK210122_01Т
Лот виставляється на торги (раз):
2
Стислий опис майна:
Пропонуються до оренди частина приміщень 2-го поверху, площею 690,20 м. кв. Будівля знаходиться в Оболонському районі міста Києва, житловий масив Оболонь, розвинена інфраструктура, високі автомобільний та пішохідний потоки, в 5 хв. від ст. м. Героїв Дніпра та Мінська (синя гілка), Торгівельно-розважальні центри. Характеристики: • кількість поверхів – 4; • опалення централізоване (міське); • земельна ділянка – 0,6695 га; • сан. вузол, водопостачання, каналізація - присутні; • загальна площа будівлі – 9462,60 м. кв;
Адреса місцезнаходження майна:
Україна, м.Київ, Київ, пр-т. Оболонський, 32-Б
Схожі пропозиції
м. Київ, вул. Райдужна, 27-А, оренда – приміщення підвалу, площею 274,70 кв.м. (В)
29 667.60 грн
108.00 грн / м2
Приміщення
м. Київ, вул. Райдужна, 27-А, оренда – приміщення підвалу, площею 274,70 кв.м. (В)
Україна, м.Київ, Київ, вул. Райдужна, 27-А
м. Київ, вул. Малиновського, 19-А, літ. «А». Оренда – приміщення 1го поверху, площею 75,50 кв.м. (В)
12 979.96 грн
171.92 грн / м2
Приміщення
м. Київ, вул. Малиновського, 19-А, літ. «А». Оренда – приміщення 1го поверху, площею 75,50 кв.м. (В)
Україна, м.Київ, Київ, . Малиновського, 19-А, літ. «А»
м. Київ, вул. Оболонська, 29-А, оренда – приміщення 1-го поверху площею 113,30 м2 (В)
36 013.54 грн
317.86 грн / м2
Приміщення
м. Київ, вул. Оболонська, 29-А, оренда – приміщення 1-го поверху площею 113,30 м2 (В)
Україна, м.Київ, Київ, вул. Оболонська, 29-А
м. Київ, вул. Джона Маккейна, №40, оренда – приміщення 2-го поверху, площею 920,80 м2 (В)
251 645.43 грн
273.29 грн / м2
Приміщення
м. Київ, вул. Джона Маккейна, №40, оренда – приміщення 2-го поверху, площею 920,80 м2 (В)
Україна, м.Київ, Київ, вул. Джона Маккейна, 40
Переглянуті пропозиції
29.03.2024
ДОВГОСТРОКОВА ОРЕНДА! м. Київ, вул. Героїв Севастополя, 39/8 літ. «Е»;  Оренда – приміщення 2-го та 4-го поверхів, площею 1751,8 кв.м. (В)
239 944.05 грн
136.97 грн / м2
Приміщення
ДОВГОСТРОКОВА ОРЕНДА! м. Київ, вул. Героїв Севастополя, 39/8 літ. «Е»; Оренда – приміщення 2-го та 4-го поверхів, площею 1751,8 кв.м. (В)
Україна, м.Київ, Київ, вул. Героїв Севастополя, 39/8(Е)