м. Київ, вул. Архітектора Вербицького, 3 (Дарницький р-н). Оренда – Приміщення підвалу, площею 198,70 кв.м. (В)

16 309.30 грн
82.08 грн / м2
Україна, м.Київ, Київ, 02091, м. Київ, вул. Архітектора Вербицького , 3
Перейти до аукціону на сайті
  • Інформація
  • Опис
  • Документи
Дата оголошення пропозиції:
03 травня 2025
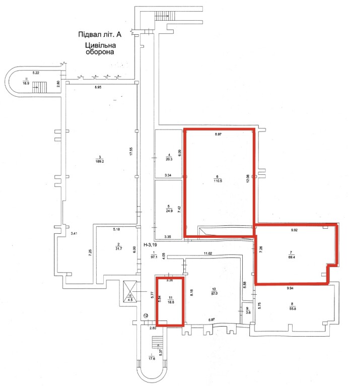
Площа:
198.70 м2
Тип об’єкта:
Приміщення
Тип аукціону:
Англійський аукціон
Статус аукціону:
Аукціон не відбувся
Тип угоди:
Оренда
Розмір мінімального кроку:
300.00 ₴
Розмір гарантійного внеску:
9 785.58 ₴
Початок прийому пропозицій:
03.05.2025 18:05:46
Завершення прийому пропозицій:
03.06.2025 20:00:00
Проведення аукціону:
04.06.2025 11:25:00
Лот:
CLE001-UA-20250503-93933
№ лоту (УТК):
UTK200225_40U
Лот виставляється на торги (раз):
3
Стислий опис майна:
Пропонується до оренди приміщення підвалу, площею 198,70кв.м. Будівля знаходиться в Дарницькому районі міста Києва, житловий масив Харківський. Зупинки маршрутного транспорту, супермаркети, торгово-розважальні центри. Найближчі станції метро «Харківська», «Вирлиця». Вхід з двору. Характеристики: • загальна площа будівлі – 4804,70 кв.м. ; • кількість поверхів – 5; • опалення централізоване (міське); • земельна ділянка – 0,55 га; • каналізація, водозабезпечення, сан. вузол – відсутні;
Адреса місцезнаходження майна:
Україна, м.Київ, Київ, 02091, м. Київ, вул. Архітектора Вербицького , 3
Схожі пропозиції
м. Київ, пр-т. Оболонський, 32-Б. частина приміщень 2-го поверху, площею 690,20 кв. м. (В)
78 938.17 грн
114.37 грн / м2
Приміщення
м. Київ, пр-т. Оболонський, 32-Б. частина приміщень 2-го поверху, площею 690,20 кв. м. (В)
Україна, м.Київ, Київ, пр-т. Оболонський, 32-Б
05.08.2022
м. Київ, вул. Архітектора Вербицького, 3. Оренда – Приміщення 1-го, 3-го, 4-го поверхів, площею 1191,50 м2 (В)
55 047.30 грн
46.20 грн / м2
Приміщення
м. Київ, вул. Архітектора Вербицького, 3. Оренда – Приміщення 1-го, 3-го, 4-го поверхів, площею 1191,50 м2 (В)
Україна, м.Київ, Київ, вул. Архітектора Вербицького, 3
м. Київ, вул. Маршала Малиновського №19-А. Оренда – приміщення 1-го поверху площею 120,30 кв.м. (В)
29 545.68 грн
245.60 грн / м2
Приміщення
м. Київ, вул. Маршала Малиновського №19-А. Оренда – приміщення 1-го поверху площею 120,30 кв.м. (В)
Україна, м.Київ, Київ, вул. Маршала Малиновського №19-А
18.01.2023
м. Київ, вул. Героїв Севастополя, 39/8. Оренда – приміщення 1-го поверху площею 74,4 м² (В)
14 463.36 грн
194.40 грн / м2
Приміщення
м. Київ, вул. Героїв Севастополя, 39/8. Оренда – приміщення 1-го поверху площею 74,4 м² (В)
Україна, м.Київ, Київ, вулиця Героїв Севастополя, 39/8
Переглянуті пропозиції
04.02.2025
Івано-Франківська обл., Калуський  район, смт. Рожнятів,  площа Єдності,  9;   Оренда – приміщення 3-го поверху площею 109,6 кв.м. (В)
1 367.81 грн
12.48 грн / м2
Приміщення
Івано-Франківська обл., Калуський район, смт. Рожнятів, площа Єдності, 9; Оренда – приміщення 3-го поверху площею 109,6 кв.м. (В)
Україна, Івано-Франківська обл., Рожнятів, площа Єдності, 9