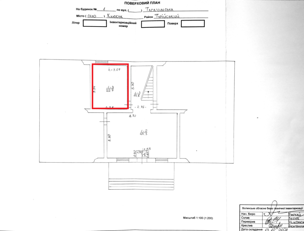
Волинська обл., Ковельський р-н, с. Клюськ, вул. Тагачинська, 1. Оренда – приміщення 1-го поверху площею 22,90 кв.м (В)

1 766.51 грн
77.14 грн / м2
Україна, Волинська обл., Клюськ, вул. Тагачинська, 1
Перейти до аукціону на сайті
  • Інформація
  • Опис
  • Документи
Дата оголошення пропозиції:
03 жовтня 2025
Площа:
22.90 м2
Тип об’єкта:
Приміщення
Тип аукціону:
Англійський аукціон
Статус аукціону:
Прийняття заяв на участь
Тип угоди:
Оренда
Розмір мінімального кроку:
50.00 ₴
Розмір гарантійного внеску:
1 059.90 ₴
Початок прийому пропозицій:
03.10.2025 10:13:31
Завершення прийому пропозицій:
03.11.2025 20:00:00
Проведення аукціону:
04.11.2025 12:20:00
Лот:
CLE001-UA-20251003-74302
№ лоту (УТК):
UTK031025_02U
Лот виставляється на торги (раз):
1
Стислий опис майна:
Пропонується до оренди приміщення 1-го поверху площею 22,90 кв.м. Може бути використане під майстерню тощо. Будівля знаходиться на околиці села. Вхід в приміщення загальний зі сторони фасаду будівлі. Зручна транспортна розв’язка та інфраструктура. Характеристики: Кількість поверхів – 2; Загальна площа – 86,1 кв.м; Площа запропонована до оренди – 22,9 кв.м; Дозволена потужність – 220 Вт; Опалення – відсутнє; Водопостачання та водовідведення – відсутнє; Земельна ділянка – 0,0164 га (договір оренди).
Адреса місцезнаходження майна:
Україна, Волинська обл., Клюськ, вул. Тагачинська, 1
Схожі пропозиції
11.07.2023
Волинська обл., Луцький р-н, с. Терешківці, вул. Центральна, 34. Оренда – приміщення 1-го поверху площею 19,60 кв.м. (В)
1 156.40 грн
59.00 грн / м2
Приміщення
Волинська обл., Луцький р-н, с. Терешківці, вул. Центральна, 34. Оренда – приміщення 1-го поверху площею 19,60 кв.м. (В)
Україна, Волинська обл., Луцький р-н, с. Терешківці, вул. Центральна, 34
23.04.2025
Волинська обл., м. Луцьк, пр-т Відродження, 6. Оренда – приміщення підвалу 221,00 кв.м та 1-го поверху 543,20 кв.м загальною площею 764,20 кв.м. (В)
17.08.2022
Волинська обл., м. Луцьк, пр-т Відродження, 6. Оренда – приміщення підвалу 221,00 кв.м та 1-го поверху 543,20 кв.м загальною площею 764,20 кв.м (В)
11.09.2024
Волинська обл., Володимир-Волинський р-н, м.Нововолинськ, вул.Митрополита Шептицького, 6; Оренда – група приміщень 3-го поверху площею 79,20 кв.м. (В)
4 937.33 грн
62.34 грн / м2
Приміщення
Волинська обл., Володимир-Волинський р-н, м.Нововолинськ, вул.Митрополита Шептицького, 6; Оренда – група приміщень 3-го поверху площею 79,20 кв.м. (В)
Україна, Волинська обл., Нововолинськ, вул. Митрополита Шептицького, 6
Переглянуті пропозиції
04.11.2025
ДОВГОСТРОКОВА ОРЕНДА! Вінницька обл., м. Вінниця, проспект Коцюбинського, 28. Оренда – приміщення 3-го поверху площею 903,00 кв.м. (В)
67 725.00 грн
75.00 грн / м2
Приміщення
ДОВГОСТРОКОВА ОРЕНДА! Вінницька обл., м. Вінниця, проспект Коцюбинського, 28. Оренда – приміщення 3-го поверху площею 903,00 кв.м. (В)
Україна, Вінницька обл., м. Вінниця, проспект Коцюбинського, 28
04.11.2025
Івано-Франківська обл., Івано-Франківський р-н, м.Галич, Майдан Різдва, 11Г. Оренда – приміщення 1-го поверху, площею 117,9 м.кв. (В)
4 385.88 грн
37.20 грн / м2
Приміщення
Івано-Франківська обл., Івано-Франківський р-н, м.Галич, Майдан Різдва, 11Г. Оренда – приміщення 1-го поверху, площею 117,9 м.кв. (В)
Україна, Івано-Франківська обл., Івано-Франківський р-н, м.Галич, Майдан Різдва, 11Г