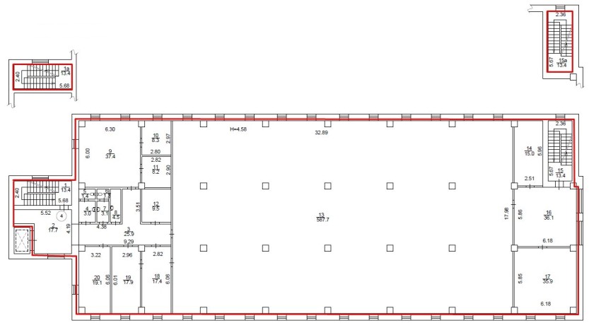
ДОВГОСТРОКОВА ОРЕНДА! Вінницька обл., м. Вінниця, проспект Коцюбинського, 28. Оренда – приміщення 3-го поверху площею 903,00 кв.м. (В)

67 725.00 грн
75.00 грн / м2
Україна, Вінницька обл., м. Вінниця, проспект Коцюбинського, 28
Перейти до аукціону на сайті
  • Інформація
  • Опис
  • Документи
Дата оголошення пропозиції:
03 жовтня 2025
Площа:
903.00 м2
Тип об’єкта:
Приміщення
Тип аукціону:
Англійський аукціон
Статус аукціону:
Прийняття заяв на участь
Тип угоди:
Оренда
Розмір мінімального кроку:
700.00 ₴
Розмір гарантійного внеску:
40 635.00 ₴
Початок прийому пропозицій:
03.10.2025 11:08:14
Завершення прийому пропозицій:
03.11.2025 20:00:00
Проведення аукціону:
04.11.2025 11:35:00
Лот:
CLE001-UA-20251003-85417
№ лоту (УТК):
UTK031025_02P
Лот виставляється на торги (раз):
1
Стислий опис майна:
Пропонується до оренди приміщення 3-го поверху будівлі АТС з прибудовою, площею 903,00 кв.м. Будівля знаходиться в прицентральній частині м. Вінниця. Поруч розташовані Центральний ринок, Вінницький державний педагогічний університет, Будинок офіцерів, залізничний вокзал, торговельні заклади. Зручна транспортна розв’язка та інфраструктура. Характеристики: Кількість поверхів – 4; Загальна площа – 5247,90 кв.м Площа запропонована до оренди – 903,00 кв.м Електропостачання, терлопостачання та водопостачання
Адреса місцезнаходження майна:
Україна, Вінницька обл., м. Вінниця, проспект Коцюбинського, 28
Схожі пропозиції
08.05.2024
Вінницька обл., Вінницький р-н, м. Немирів, вул. Шевченка, 25;   Оренда – приміщення 4-го поверху, площею 349,8 кв.м. (В)
4 466.95 грн
12.77 грн / м2
Приміщення
Вінницька обл., Вінницький р-н, м. Немирів, вул. Шевченка, 25; Оренда – приміщення 4-го поверху, площею 349,8 кв.м. (В)
Україна, Вінницька обл., Немирів, вул. Шевченка, 25
12.01.2024
  ДОВГОСТРОКОВА ОРЕНДА! Вінницька обл., м. Вінниця, вул. Соборна, 8 ;    Оренда – приміщення 4-го поверху площею 593,4 кв.м. (В)
61 784.81 грн
104.12 грн / м2
Приміщення
ДОВГОСТРОКОВА ОРЕНДА! Вінницька обл., м. Вінниця, вул. Соборна, 8 ; Оренда – приміщення 4-го поверху площею 593,4 кв.м. (В)
Україна, Вінницька обл., Вінниця, вулиця Соборна, 8
09.07.2025
м. Вінниця, вул. Симона Петлюри, 15. Оренда – приміщення в будівлі складу площею 30,40 кв.м (В)
2 262.98 грн
74.44 грн / м2
Приміщення
м. Вінниця, вул. Симона Петлюри, 15. Оренда – приміщення в будівлі складу площею 30,40 кв.м (В)
Україна, Вінницька обл., м. Вінниця, вул. Симона Петлюри, 15
19.09.2023
Вінницька обл., Вінницький р_н, смт. Тиврів, вул. Тиверська, 55. Оренда – приміщення 1го поверху площею 22,4 кв.м. (В)
268.80 грн
12.00 грн / м2
Приміщення
Вінницька обл., Вінницький р_н, смт. Тиврів, вул. Тиверська, 55. Оренда – приміщення 1го поверху площею 22,4 кв.м. (В)
Україна, Вінницька обл., Вінницький р_н, смт. Тиврів, вул. Тиверська, 55
Переглянуті пропозиції
04.11.2025
Івано-Франківська обл., Івано-Франківський р-н, м.Галич, Майдан Різдва, 11Г. Оренда – приміщення 1-го поверху, площею 117,9 м.кв. (В)
4 385.88 грн
37.20 грн / м2
Приміщення
Івано-Франківська обл., Івано-Франківський р-н, м.Галич, Майдан Різдва, 11Г. Оренда – приміщення 1-го поверху, площею 117,9 м.кв. (В)
Україна, Івано-Франківська обл., Івано-Франківський р-н, м.Галич, Майдан Різдва, 11Г