Довгострокова оренда! Полтавська обл., м. Лубни, проспект Володимирський, 118. Оренда – будівля площею 685,10 кв.м. (В)

16 695.89 грн
24.37 грн / м2
Україна, Полтавська обл., Лубни, проспект Володимирський, 118
Перейти до аукціону на сайті
  • Інформація
  • Опис
  • Документи
Дата оголошення пропозиції:
03 жовтня 2025
Площа:
685.10 м2
Тип об’єкта:
Будівля
Тип аукціону:
Англійський аукціон
Статус аукціону:
Прийняття заяв на участь
Тип угоди:
Оренда
Розмір мінімального кроку:
100.00 ₴
Розмір гарантійного внеску:
10 017.53 ₴
Початок прийому пропозицій:
03.10.2025 14:48:06
Завершення прийому пропозицій:
03.11.2025 20:00:00
Проведення аукціону:
04.11.2025 12:15:00
Лот:
CLE001-UA-20251003-54332
№ лоту (УТК):
UTK090525_03U
Лот виставляється на торги (раз):
5
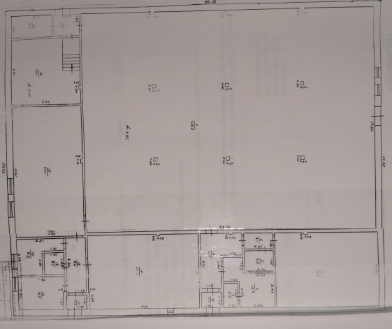
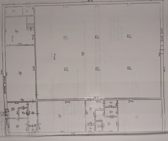
Стислий опис майна:
Пропонується до оренди будівля площею 685,10 кв.м. Одноповерхова будівля, що розташована в 5 мікрорайоні м.Лубни. Характеристики Кількість поверхів –1; Загальна площа –685,10 кв. м.; Площа запропонована до оренди 685,10 кв. м.; Опалення – відсутнє; Електропостачання– відсутнє; Земельна ділянка – 0,1695 га договір оренди
Адреса місцезнаходження майна:
Україна, Полтавська обл., Лубни, проспект Володимирський, 118
Схожі пропозиції
23.08.2022
Полтавська обл., Лубенський р-н, с. Козубівка, вул. Шевченка, буд. 25. Оренда – частина будівлі площею 42,40 кв.м. (В)
267.97 грн
6.32 грн / м2
Будівля
Полтавська обл., Лубенський р-н, с. Козубівка, вул. Шевченка, буд. 25. Оренда – частина будівлі площею 42,40 кв.м. (В)
Україна, Полтавська обл., Козубівка, вул. Шевченка, буд. 25
22.09.2022
Полтавська обл., Кременчуцький р-н, с. Погреби, вул. Шевченка, буд.72. Оренда – Будівля площею 64,90 кв.м. (В)
500.38 грн
7.71 грн / м2
Будівля
Полтавська обл., Кременчуцький р-н, с. Погреби, вул. Шевченка, буд.72. Оренда – Будівля площею 64,90 кв.м. (В)
Україна, Полтавська обл., Кременчуцький р-н, с. Погреби, вул. Шевченка, буд.72
Полтавська обл., м. Полтава, провулок Латишева, буд. 11-А. Оренда – Частина будівлі площею 1287,60 кв.м. (В)
42 722.57 грн
33.18 грн / м2
Будівля
Полтавська обл., м. Полтава, провулок Латишева, буд. 11-А. Оренда – Частина будівлі площею 1287,60 кв.м. (В)
Україна, Полтавська обл., м. Полтава, провулок Латишева, буд. 11-А
15.12.2022
Полтавська обл., Лубенський р-н., м. Пирятин, вул. Архітектора Хітріна, 16. Оренда – Будівля площею 69,70 кв.м. (В)
288.56 грн
4.14 грн / м2
Будівля
Полтавська обл., Лубенський р-н., м. Пирятин, вул. Архітектора Хітріна, 16. Оренда – Будівля площею 69,70 кв.м. (В)
Україна, Полтавська обл., Лубенський р-н., м. Пирятин, вул. Архітектора Хітріна, 16
Переглянуті пропозиції
04.11.2025
 Полтавська обл., м. Глобине, вулиця Центральна, 222. Оренда – гаражі загальною площею 40,70 кв.м. (В)
705.74 грн
17.34 грн / м2
Гараж
Полтавська обл., м. Глобине, вулиця Центральна, 222. Оренда – гаражі загальною площею 40,70 кв.м. (В)
Україна, Полтавська обл., Глобине, вулиця Центральна, 222
Рівненська обл., м. Дубровиця, вул. Шевченка, 53. Оренда – приміщення 3 поверху, площею 71,9 м. кв. (В)
1 366.10 грн
19.00 грн / м2
Приміщення
Рівненська обл., м. Дубровиця, вул. Шевченка, 53. Оренда – приміщення 3 поверху, площею 71,9 м. кв. (В)
Україна, Рівненська обл., м. Дубровиця, вул. Шевченка, 53
04.11.2025
Чернігівська обл., м. Ічня, вул. Воскресінська, 26. Оренда – приміщення 2-го поверху площею 155,90 кв.м (В)
3 507.75 грн
22.50 грн / м2
Приміщення
Чернігівська обл., м. Ічня, вул. Воскресінська, 26. Оренда – приміщення 2-го поверху площею 155,90 кв.м (В)
Україна, Чернігівська обл., Ічня, вул. Воскресінська, 26