м. Київ, проспект Петра Григоренка, 36-В. Оренда – приміщення 1-го поверху площею 37,70 кв.м. (В)

6 151.13 грн
163.16 грн / м2
Україна, м.Київ, Київ, проспект Петра Григоренка, 36-В
Перейти до аукціону на сайті
  • Інформація
  • Опис
  • Документи
Дата оголошення пропозиції:
06 травня 2022
Площа:
37.70 м2
Тип об’єкта:
Приміщення
Тип аукціону:
Англійський аукціон
Статус аукціону:
Аукціон не відбувся
Тип угоди:
Оренда
Розмір мінімального кроку:
100.00 ₴
Розмір гарантійного внеску:
3 690.68 ₴
Початок прийому пропозицій:
06.05.2022 15:51:02
Завершення прийому пропозицій:
08.06.2022 20:00:00
Лот:
UA-PS-2022-05-06-000043-3
№ лоту (УТК):
UTK040422_05T
Лот виставляється на торги (раз):
2
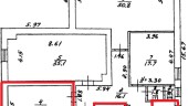
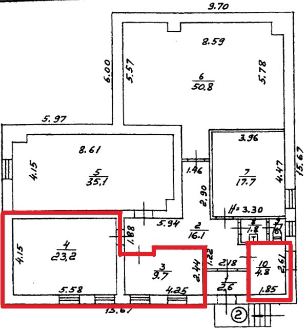
Стислий опис майна:
Пропонуються до оренди приміщення 1-го поверху, площею 37,70 м2. Будівля розташована у Дарницькому районі міста Києва, поруч розташовані житлові масиви Позняки, Осокорки.. Поруч розвинена інфраструктура, зупинки маршрутного транспорту, супермаркети. Характеристики • кількість поверхів – 1; • сан. вузол, каналізація – присутні; • Загальна площа будівлі – 332,50м2; • опалення - відсутнє; • земельна ділянка – 0,0462 га;
Адреса місцезнаходження майна:
Україна, м.Київ, Київ, проспект Петра Григоренка, 36-В
Схожі пропозиції
10.11.2022
ДОВГОСТРОКОВА ОРЕНДА! м. Київ, вул. Героїв Севастополя, 39/8 літ. «Е». Оренда – приміщення 2-го та 4-го поверхів, площею 1751,80 м2 (В)
122 135.50 грн
69.72 грн / м2
Приміщення
ДОВГОСТРОКОВА ОРЕНДА! м. Київ, вул. Героїв Севастополя, 39/8 літ. «Е». Оренда – приміщення 2-го та 4-го поверхів, площею 1751,80 м2 (В)
Україна, м.Київ, Київ, вулиця Героїв Севастополя, 39
29.03.2024
ДОВГОСТРОКОВА ОРЕНДА! м. Київ, вул. Салютна, 5а, літ. «Б»;  Оренда – приміщення 3-го та 4-го поверхів площею 992,8 кв.м. (В)
122 720.01 грн
123.61 грн / м2
Приміщення
ДОВГОСТРОКОВА ОРЕНДА! м. Київ, вул. Салютна, 5а, літ. «Б»; Оренда – приміщення 3-го та 4-го поверхів площею 992,8 кв.м. (В)
Україна, м.Київ, Київ, вулиця Салютна, 5а, літ.Б
11.04.2024
м. Київ, вул. Ісаакяна, 3;   Оренда – Приміщення 2-го поверху площею 149,81 кв.м (В)
37 211.31 грн
248.39 грн / м2
Приміщення
м. Київ, вул. Ісаакяна, 3; Оренда – Приміщення 2-го поверху площею 149,81 кв.м (В)
Україна, м.Київ, Київ, вулиця Ісаакяна, 3
20.06.2023
м. Київ, вул. Василя Макуха (Шевцова Івана), 5. Довгострокова оренда – приміщення 3-го поверху площею 905,3 м2 (В)
41 824.86 грн
46.20 грн / м2
Приміщення
м. Київ, вул. Василя Макуха (Шевцова Івана), 5. Довгострокова оренда – приміщення 3-го поверху площею 905,3 м2 (В)
Україна, м.Київ, Київ, вул. Василя Макуха (Шевцова Івана), 5
Переглянуті пропозиції
07.11.2024
ДОВГОСТРОКОВА ОРЕНДА! м. Київ, вул. Салютна, 5а, літ. «Б»;  Оренда – приміщення 3-го та 4-го поверхів площею 992,8 кв.м. (В)
122 720.01 грн
123.61 грн / м2
Приміщення
ДОВГОСТРОКОВА ОРЕНДА! м. Київ, вул. Салютна, 5а, літ. «Б»; Оренда – приміщення 3-го та 4-го поверхів площею 992,8 кв.м. (В)
Україна, м.Київ, Київ, вулиця Салютна, 5а, літ.Б