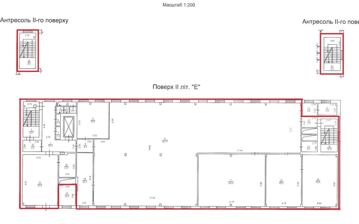
ДОВГОСТРОКОВА ОРЕНДА! м. Київ, вул. Героїв Севастополя, 39/8 літ. «Е». Оренда – приміщення 2-го та 4-го поверхів, площею 1751,80 м2 (В)

122 135.50 грн
69.72 грн / м2
Україна, м.Київ, Київ, вулиця Героїв Севастополя, 39
Перейти до аукціону на сайті
  • Інформація
  • Опис
  • Документи
Дата оголошення пропозиції:
12 жовтня 2022
Площа:
1751.80 м2
Тип об’єкта:
Приміщення
Тип аукціону:
Англійський аукціон
Статус аукціону:
Аукціон не відбувся
Тип угоди:
Оренда
Розмір мінімального кроку:
1 300.00 ₴
Розмір гарантійного внеску:
73 281.30 ₴
Початок прийому пропозицій:
12.10.2022 13:24:32
Завершення прийому пропозицій:
09.11.2022 20:00:00
Проведення аукціону:
10.11.2022 11:45:00
Лот:
CLE001-UA-20221012-34614
№ лоту (УТК):
UTK270522_6T
Лот виставляється на торги (раз):
5
Стислий опис майна:
Пропонується до оренди приміщення 2-го та 4-го поверху площею 1751,80 м². Перегляд запропонованих приміщень за попереднім записом, в робочі дні з пн по пт з 9.00 до 17.00. Контактний тел. для запису: +38 044-234-43-31; 091-114-04-65
Адреса місцезнаходження майна:
Україна, м.Київ, Київ, вулиця Героїв Севастополя, 39
Схожі пропозиції
14.06.2024
ДОВГОСТРОКОВА ОРЕНДА! м. Київ, вул. Героїв Севастополя, 39/8 літ. «Е»;  Оренда – приміщення 2-го та 4-го поверхів, площею 1751,8 кв.м. (В)
239 944.05 грн
136.97 грн / м2
Приміщення
ДОВГОСТРОКОВА ОРЕНДА! м. Київ, вул. Героїв Севастополя, 39/8 літ. «Е»; Оренда – приміщення 2-го та 4-го поверхів, площею 1751,8 кв.м. (В)
Україна, м.Київ, Київ, вул. Героїв Севастополя, 39/8(Е)
11.11.2025
м. Київ, вул. Ореста Васкула, 27 (Святошинський р-н). Оренда – група приміщень на 3-му поверсі, загальною площею – 29,80 м. кв. (В)
30.03.2023
ДОВГОСТРОКОВА ОРЕНДА! м. Київ, вул. Антоновича, 40, оренда – приміщення 2-го поверху, площею 757,9 кв.м. (В)
161 872.28 грн
213.58 грн / м2
Приміщення
ДОВГОСТРОКОВА ОРЕНДА! м. Київ, вул. Антоновича, 40, оренда – приміщення 2-го поверху, площею 757,9 кв.м. (В)
Україна, м.Київ, Київ, вул. Антоновича, 40
31.07.2025
м. Київ, вул. Наталії Ужвій 1 (Подільський р-н). Оренда – приміщення 3-го поверху, загальною площею – 68,50 м. кв. (В)
4 479.90 грн
65.40 грн / м2
Приміщення
м. Київ, вул. Наталії Ужвій 1 (Подільський р-н). Оренда – приміщення 3-го поверху, загальною площею – 68,50 м. кв. (В)
Україна, м.Київ, Київ, 04108, м. Київ, вул. Наталії Ужвій 1
Переглянуті пропозиції
01.11.2022
Івано-Франківська обл., м. Івано-Франківськ, вул. В.Симоненка, 1. Оренда – приміщення цокольного поверху, площею 60,2 м.кв. (В)
4 331.99 грн
71.96 грн / м2
Приміщення
Івано-Франківська обл., м. Івано-Франківськ, вул. В.Симоненка, 1. Оренда – приміщення цокольного поверху, площею 60,2 м.кв. (В)
Україна, Івано-Франківська обл., м. Івано-Франківськ, вул. В.Симоненка, 1
28.02.2025
Рівненська обл., м. Рівне, вул. Боярка, 54 а, б. Оренда – комплекс будівель площею 620,1 м. кв. (В)
37 206.00 грн
60.00 грн / м2
Будівля
Рівненська обл., м. Рівне, вул. Боярка, 54 а, б. Оренда – комплекс будівель площею 620,1 м. кв. (В)
Україна, Рівненська обл., м. Рівне, вул. Боярка, 54 а, б
26.11.2025
м. Харків, Нетіченська набережна, 8. Оренда – приміщення 3-го поверху площею 11,10 кв.м  (В)
510.60 грн
46.00 грн / м2
Приміщення
м. Харків, Нетіченська набережна, 8. Оренда – приміщення 3-го поверху площею 11,10 кв.м (В)
Україна, Харківська обл., м. Харків, Нетіченська набережна, 8
13.01.2023
ДОВГОСТРОКОВА ОРЕНДА! Рівненська обл., м. Рівне, вул. В.Чорновола, 1. Оренда – приміщення 5-го поверху загальною площею 483,4 кв.м. (В)
57 157.22 грн
118.24 грн / м2
Приміщення
ДОВГОСТРОКОВА ОРЕНДА! Рівненська обл., м. Рівне, вул. В.Чорновола, 1. Оренда – приміщення 5-го поверху загальною площею 483,4 кв.м. (В)
Україна, Рівненська обл., Рівне, вулиця Вячеслава Чорновола, 1