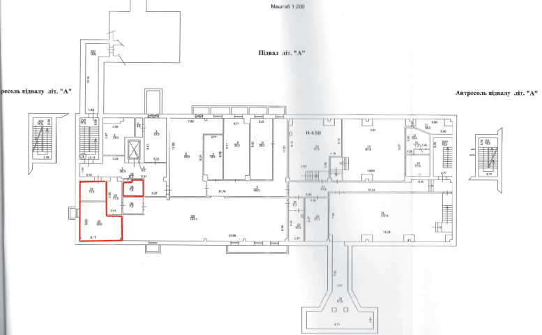
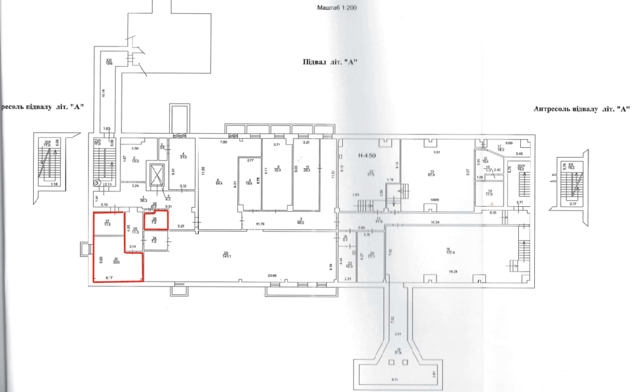
м. Київ, вул. Джона Маккейна, 40, літ. «А» (Печерський р-н). Оренда – група приміщень у підвалі, площею 49,40 кв.м (В)

14 198.06 грн
287.41 грн / м2
Україна, м.Київ, Київ, 01042, м. Київ, вул. Джона Маккейна, 40, літ. «А» (Печерський р-н)
Перейти до аукціону на сайті
  • Інформація
  • Опис
  • Документи
Дата оголошення пропозиції:
21 лютого 2025
Площа:
49.40 м2
Тип об’єкта:
Приміщення
Тип аукціону:
Англійський аукціон
Статус аукціону:
Аукціон не відбувся
Тип угоди:
Оренда
Розмір мінімального кроку:
700.00 ₴
Розмір гарантійного внеску:
8 518.84 ₴
Початок прийому пропозицій:
21.02.2025 00:27:57
Завершення прийому пропозицій:
20.03.2025 20:00:00
Проведення аукціону:
21.03.2025 12:50:00
Лот:
CLE001-UA-20250220-22059
№ лоту (УТК):
UTK200225_34U
Лот виставляється на торги (раз):
1
Стислий опис майна:
До оренди пропонується група приміщень у підвалі, площею 49,40 кв.м. Будівля знаходиться в Печерському районі міста Києва, місцевість Саперне поле, в пішому доступі до ст. м. Дружби Народів (до 5 хв.) та ст. м. Либідська, ст. м. Печерська (до 10 хв.), у районі розвинена інфраструктура й відмінна транспортна розв’язка, поруч торгові центри, супермаркети, парки.. Вхід з вул. Джона Маккейна. Характеристики • кількість поверхів – 4; • загальна площа – 4 778,70 кв. м; • площа запропонована до оренди – 49,40 кв.м; • опалення централізоване (міське); • водопостачання, каналізація, сан. вузол – відсутній на поверсі; • земельна ділянка – 0,46 га (договір оренди).
Адреса місцезнаходження майна:
Україна, м.Київ, Київ, 01042, м. Київ, вул. Джона Маккейна, 40, літ. «А» (Печерський р-н)
Схожі пропозиції
10.05.2023
ДОВГОСТРОКОВА ОРЕНДА! 04111, м. Київ, вул. Салютна, 5-А, літ. «Б» Оренда – приміщення 2-го та 3-го поверхів, площею 1048,2 м2 (В)
м. Київ, вул. Маршала Малиновського №19-А. Оренда – приміщення 1-го поверху площею 120,30 кв.м. (В)
29 545.68 грн
245.60 грн / м2
Приміщення
м. Київ, вул. Маршала Малиновського №19-А. Оренда – приміщення 1-го поверху площею 120,30 кв.м. (В)
Україна, м.Київ, Київ, вул. Маршала Малиновського №19-А
21.03.2025
 м. Київ, вул. Архітектора Вербицького, 3 (Дарницький р-н). Оренда – Приміщення підвалу, площею 198,70 кв.м. (В)
23 104.84 грн
116.28 грн / м2
Приміщення
м. Київ, вул. Архітектора Вербицького, 3 (Дарницький р-н). Оренда – Приміщення підвалу, площею 198,70 кв.м. (В)
Україна, м.Київ, Київ, 02091, м. Київ, вул. Архітектора Вербицького , 3
26.12.2024
м. Київ, бульвар Бучми Амвросія, 5;   Оренда – приміщення 3-го та 4-го поверхів технічної будівлі АТС-550 (літ. «Б»), площею 1006,83 кв.м. (В)
92 628.36 грн
92.00 грн / м2
Приміщення
м. Київ, бульвар Бучми Амвросія, 5; Оренда – приміщення 3-го та 4-го поверхів технічної будівлі АТС-550 (літ. «Б»), площею 1006,83 кв.м. (В)
Україна, м.Київ, м. Київ, бульвар Амвросія Бучми, 5 літ.Б
Переглянуті пропозиції
26.11.2025
Сумська область, Шосткинський р-н, м. Глухів, пров. Поштовий, буд. 4. Оренда – приміщення гаражів площею 160,10 кв. м. (В)
1 921.20 грн
12.00 грн / м2
Приміщення
Сумська область, Шосткинський р-н, м. Глухів, пров. Поштовий, буд. 4. Оренда – приміщення гаражів площею 160,10 кв. м. (В)
Україна, Сумська обл., Шосткинський р-н, м. Глухів, пров. Поштовий, буд. 4
27.09.2024
Сумська обл., м. Буринь, вул. Першотравнева, 5. Оренда – офісні приміщення 2-го поверху площею 22,10 кв.м. (В)
502.33 грн
22.73 грн / м2
Офіс
Сумська обл., м. Буринь, вул. Першотравнева, 5. Оренда – офісні приміщення 2-го поверху площею 22,10 кв.м. (В)
Україна, Сумська обл., м. Буринь, вул. Першотравнева, 5
25.07.2025
Рівненська обл., м. Рівне вул. В. Чорновола, 1. Оренда – підвальні приміщення загальною площею 261,7 м.кв. (В)
15 702.00 грн
60.00 грн / м2
Приміщення
Рівненська обл., м. Рівне вул. В. Чорновола, 1. Оренда – підвальні приміщення загальною площею 261,7 м.кв. (В)
Україна, Рівненська обл., м. Рівне, вул. В. Чорновола, 1
05.06.2024
Харківська обл., м. Харків, вул. Коцарська, 45, літер «А-4»;  Оренда – приміщення на 2-му поверсі загальною площею 14,30 кв.м. (В)
768.77 грн
53.76 грн / м2
Приміщення
Харківська обл., м. Харків, вул. Коцарська, 45, літер «А-4»; Оренда – приміщення на 2-му поверсі загальною площею 14,30 кв.м. (В)
Україна, Харківська обл., Харків, вулиця Коцарська, 45