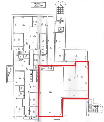
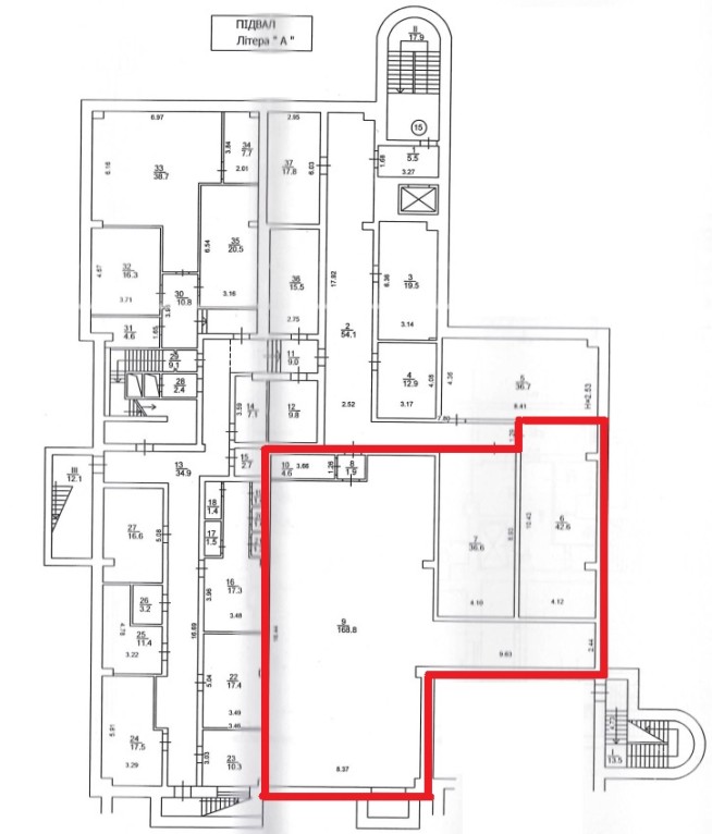
м. Київ, вул. Князів Острозьких (Московська), 23 (В). Оренда – приміщення підвалу будівлі, площею 254,50 м2

41 987.41 грн
164.98 грн / м2
Україна, м.Київ, Київ, вулиця Князів Острозьких, 23
Перейти до аукціону на сайті
  • Інформація
  • Опис
  • Документи
Дата оголошення пропозиції:
18 вересня 2025
Площа:
254.50 м2
Тип об’єкта:
Приміщення
Тип аукціону:
Англійський аукціон
Статус аукціону:
Аукціон не відбувся
Тип угоди:
Оренда
Розмір мінімального кроку:
1 000.00 ₴
Розмір гарантійного внеску:
25 192.45 ₴
Початок прийому пропозицій:
18.09.2025 15:35:54
Завершення прийому пропозицій:
20.10.2025 20:00:00
Проведення аукціону:
21.10.2025 12:55:00
Лот:
CLE001-UA-20250918-63163
№ лоту (УТК):
UTK050325_78U
Лот виставляється на торги (раз):
6
Стислий опис майна:
Пропонуються до оренди приміщення підвалу будівлі, літ. «А», площею 254,50 м2. Розташування будівлі у Печерському районі міста Києва, місцевість Печерськ. Поруч розвинена інфраструктура, зупинки громадського транспорту, супермаркети, центральна вулиця міста, у пішому доступі 5 хв до ст. м. «Арсенальна». Характеристики • кількість поверхів – 5; • сан. вузол, каналізація, теплозабезпечення – присутнє; • площа будівлі – літ. «А» - 6172,50 м2; • опалення централізоване (міське); • земельна ділянка – 0,26 га; • енерго потужність – 10 кВт.
Адреса місцезнаходження майна:
Україна, м.Київ, Київ, вулиця Князів Острозьких, 23
Схожі пропозиції
04.09.2025
м. Київ, вул. Наталії Ужвій 1 (Подільський р-н). Оренда – приміщення 1-го поверху, загальною площею – 71,20 м. кв. (В)
6 519.07 грн
91.56 грн / м2
Приміщення
м. Київ, вул. Наталії Ужвій 1 (Подільський р-н). Оренда – приміщення 1-го поверху, загальною площею – 71,20 м. кв. (В)
Україна, м.Київ, Київ, 04108, м. Київ, вул. Наталії Ужвій 1
22.10.2025
м. Київ, вул. Джона Маккейна, 40, літ. «А» (Печерський р-н). Оренда – група приміщень на 3-му поверсі, площею 62,80 кв. м. (В)
10 616.97 грн
169.06 грн / м2
Приміщення
м. Київ, вул. Джона Маккейна, 40, літ. «А» (Печерський р-н). Оренда – група приміщень на 3-му поверсі, площею 62,80 кв. м. (В)
Україна, м.Київ, Київ, , вул. Джона Маккейна, 40, літ. «А»
05.12.2023
ДОВГОСТРОКОВА ОРЕНДА! м. Київ, вул. Салютна, 5а, літ. «Б»;  Оренда – приміщення 3-го та 4-го поверхів площею 992,8 кв.м. (В)
12.01.2024
м. Київ, вул. Ореста Васкула (Феодори Пушиної), 27-А; Оренда – приміщення 3-го поверху, площею 34,5 кв.м. (В)
6 810.99 грн
197.42 грн / м2
Приміщення
м. Київ, вул. Ореста Васкула (Феодори Пушиної), 27-А; Оренда – приміщення 3-го поверху, площею 34,5 кв.м. (В)
Україна, м.Київ, м. Київ, вулиця Ореста Васкула, 27-А
Переглянуті пропозиції
м. Дніпро, проспект Богдана Хмельницького, 28А. Оренда - приміщення 1-го поверху площею 134,4 кв.м.
3 719.12 грн
27.67 грн / м2
Приміщення
м. Дніпро, проспект Богдана Хмельницького, 28А. Оренда - приміщення 1-го поверху площею 134,4 кв.м.
Україна, Дніпропетровська обл., м. Дніпро, проспект. Богдана Хмельницького, 28А
23.01.2024
Дніпропетровська обл., м. Нікополь, вулиця Патріотів України, буд. 113А;  Оренда – третій поверх, загальною площею 1107,2 кв.м.(В)
4 041.28 грн
3.65 грн / м2
Приміщення
Дніпропетровська обл., м. Нікополь, вулиця Патріотів України, буд. 113А; Оренда – третій поверх, загальною площею 1107,2 кв.м.(В)
Україна, Дніпропетровська обл., Нікополь, вул. Патріотів України, 113А
08.05.2024
м. Київ, бульвар Бучми Амвросія, 5;   Оренда – приміщення 3-го та 4-го поверхів технічної будівлі АТС-550 (літ. «Б»), площею 1006,83 кв.м. (В)
92 628.36 грн
92.00 грн / м2
Приміщення
м. Київ, бульвар Бучми Амвросія, 5; Оренда – приміщення 3-го та 4-го поверхів технічної будівлі АТС-550 (літ. «Б»), площею 1006,83 кв.м. (В)
Україна, м.Київ, м. Київ, вулиця Амвросія Бучми, 5 літ.Б
18.07.2025
Дніпропетровська обл., м. Кам’янське, просп. Героїв АТО, 1. Оренда – приміщення 3-го поверху, площею 26,30 кв.м. (В)
789.00 грн
30.00 грн / м2
Приміщення
Дніпропетровська обл., м. Кам’янське, просп. Героїв АТО, 1. Оренда – приміщення 3-го поверху, площею 26,30 кв.м. (В)
Україна, Дніпропетровська обл., м. Кам’янське, просп. Героїв АТО, 1