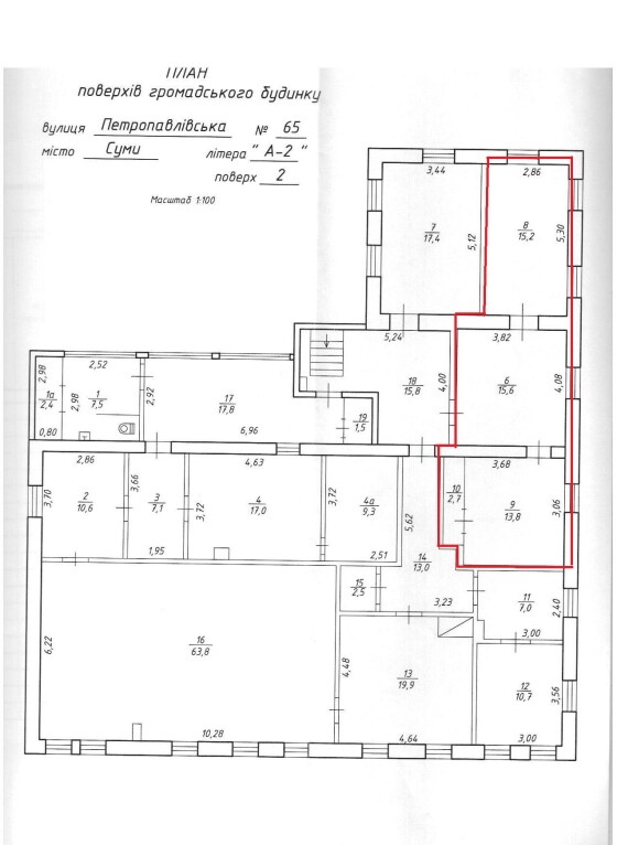
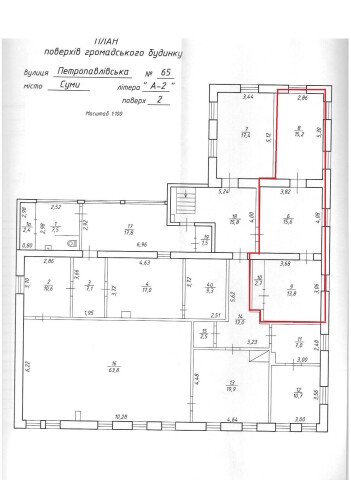
Сумська обл., м. Суми, вул. Петропавлівська, буд. 65. Оренда – офісні приміщення 2-го поверху площею 47,30 кв. м. (П)

2 242.02 грн
47.40 грн / м2
Україна, Сумська обл., м. Суми, вул. Петропавлівська, буд. 65
Перейти до аукціону на сайті
  • Інформація
  • Опис
  • Документи
Дата оголошення пропозиції:
13 травня 2024
Площа:
47.30 м2
Тип об’єкта:
Офіс
Тип аукціону:
Англійський аукціон
Статус аукціону:
Аукціон не відбувся
Тип угоди:
Оренда
Розмір мінімального кроку:
250.00 ₴
Розмір гарантійного внеску:
1 345.21 ₴
Початок прийому пропозицій:
13.05.2024 15:31:16
Завершення прийому пропозицій:
12.06.2024 20:00:00
Проведення аукціону:
13.06.2024 11:00:00
Лот:
CLE001-UA-20240513-86275
№ лоту (УТК):
UTK290324_13P
Лот виставляється на торги (раз):
2
Стислий опис майна:
Пропонуються до оренди офісні приміщення 2-го поверху площею 47,30 кв.м. Будівля знаходяться в центральній частині міста. Високий автомобільний та пішохідний потік. Можливість передачі приміщень в суборенду. Доступ вільний 24/7. Характеристики Кількість поверхів – 2 Загальна площа – 558,40 кв.м. Площа запропонована до оренди – 47,30 кв.м. Електропостачання – наявне; Опалення - відсутнє; Водопостачання – відсутнє (є можливість користування санвузлом загального користування); Земельна ділянка – 0,0719 га (договір оренди ЗД) Стан приміщення - задовільний
Адреса місцезнаходження майна:
Україна, Сумська обл., м. Суми, вул. Петропавлівська, буд. 65
Схожі пропозиції
Сумська обл., м. Суми, вул. Воскресенська, 16. Оренда – офісні приміщення площею 151,4 кв.м. (В)
6 234.65 грн
41.18 грн / м2
Офіс
Сумська обл., м. Суми, вул. Воскресенська, 16. Оренда – офісні приміщення площею 151,4 кв.м. (В)
Україна, Сумська обл., м. Суми, вул. Воскресенська, 16
21.08.2024
Сумська обл., м. Суми, вул. Іллінська, буд. 2. Оренда – офісні приміщення 3-го поверху площею 411,00 кв. м. (В)
24 138.03 грн
58.73 грн / м2
Офіс
Сумська обл., м. Суми, вул. Іллінська, буд. 2. Оренда – офісні приміщення 3-го поверху площею 411,00 кв. м. (В)
Україна, Сумська обл., м. Суми, вул. Іллінська, буд. 2
Сумська обл., м. Охтирка, вул. Чкалова, буд. 2. Оренда – офісне приміщення 1-го поверху площею 31,3 кв.м. (В)
2 504.00 грн
80.00 грн / м2
Офіс
Сумська обл., м. Охтирка, вул. Чкалова, буд. 2. Оренда – офісне приміщення 1-го поверху площею 31,3 кв.м. (В)
Україна, Сумська обл., м. Охтирка, вул. Чкалова, буд. 2
15.03.2023
Сумська обл., м. Буринь, вул. Першотравнева, 5. Оренда – офісні приміщення 2-го поверху площею 22,10 кв.м. (В)
502.33 грн
22.73 грн / м2
Офіс
Сумська обл., м. Буринь, вул. Першотравнева, 5. Оренда – офісні приміщення 2-го поверху площею 22,10 кв.м. (В)
Україна, Сумська обл., м. Буринь, вул. Першотравнева, 5
Переглянуті пропозиції
26.11.2025
Чернігівська обл., м. Чернігів, проспект Миру, 35Б. Оренда – приміщення 2 -го поверху площею 77,00 кв.м. (В)
2 310.00 грн
30.00 грн / м2
Приміщення
Чернігівська обл., м. Чернігів, проспект Миру, 35Б. Оренда – приміщення 2 -го поверху площею 77,00 кв.м. (В)
Україна, Чернігівська обл., Чернігів, проспект Миру, 35Б
06.04.2023
Полтавська обл., м. Полтава, провулок Латишева, буд. 11-А. Оренда – Частина будівлі площею 1287,60 кв.м. (В)
59 487.12 грн
46.20 грн / м2
Будівля
Полтавська обл., м. Полтава, провулок Латишева, буд. 11-А. Оренда – Частина будівлі площею 1287,60 кв.м. (В)
Україна, Полтавська обл., м. Полтава, провулок Латишева, буд. 11-А
Полтавська обл., м. Решетилівка, вул. Полтавська, 50. Оренда - підсобне приміщення та гараж
965.76 грн
19.20 грн / м2
Приміщення
Полтавська обл., м. Решетилівка, вул. Полтавська, 50. Оренда - підсобне приміщення та гараж
Україна, Полтавська обл., м. Решетилівка, вул. Полтавська, буд. 50
м. Харків, вул. Салтівське шосе, 2 Оренда приміщення 63,0 кв.м., 1 пов.
1 161.09 грн
18.43 грн / м2
Приміщення
м. Харків, вул. Салтівське шосе, 2 Оренда приміщення 63,0 кв.м., 1 пов.
Україна, Харківська обл., м. Харків, вул. Салтівське шосе, 2